www.lynda.com üzerinden izlediğim Revit 2015 Essentials videosunda
bölüm bölüm ne anlattığını ve bu bölümlerde geçen komutları ayrı ayrı yazarak
not ve ekran görüntüsü aldım. Bunlara ek olarak işime yarayacak olan
bilgileride notlarla beraber sıraladım. Bu videoda revit programına orta
seviyede hakim oldum. En baştan başlayarak nasıl topografya oluşturup merdiven,
pencere, kapı, çatı gibi birçok elemanın nasıl oluşturulduğunu bunların bir
araya gelerek nasıl birşletiğini ve bunun gibi birçok özelliklerin detayına
kadar anldım. Bunların hepsini yaparken revit programının mimari projede süreci
ne kadar hızlandırdığını ve bu sürecin direkt olarak şantiyede anında
uygulanabilecek kadar bile kusursuz yapılabileceğini anladım. Çünkü bütün yapı
elemanlarını kullanıcının bilgisine bırakan bir program. Eğer revit üzerinden
bir tasarım yapıldıysa bunu inşaaya hazırlama süreci çok kısa olacaktır. Kısaca
diğer tasarım programlarından en önemli farkı mimarlığı ve inşaa sürecini bir
arada tutan en önemli programlardan birisi.
Bütün bu detayları ve notları aşağıda görebilirsiniz
Chapter 02 - Getting comfortable with the Revit Environment
Using the properties palette
- Esc tuşu ile çizimi bırakabiliyoruz.
- Project browser sekmesinde elevation
bölümünden doğu batı kuzey güney görünüşleri elde edebiliyoruz
- Properties sekmesinden birçok
pencere öğesini seçip hepsine aynı ayarı uygulayabiliyoruz.
- Eğer farklı elemanlar seçmişsek Tuvalet - Duvar - Kat planı gibi bunlara da ayrı ayrı
değişiklikler yapabiliyoruz.
Stacking properties and
project palettes
- Yardımcı sekmelerin ekranın istediğimiz yerine nasıl
koyulduğunu gösteriyor. Hatta 2 ayrı sekmenin birleşerek tek bir yan pencere
nasıl oluşturabileceğini gösteriyor.
Using the Project Browser
- Eğer yanlışlıkla project browser sekmesi kapanırsa nasıl
tekrar açılacağını gösteriyor. View sekmesinden User
interface'e tıklayıp açılan pencerede Project Browser'ı
seçiyoruz.
- Eğer herhangi bir sectiondan işlem yaparken kesit
çizgisinin hangi section'ı oluşturduğunu görmek için kesitteki mavi simgeye 2
kere tıklayıp o section'ın layer'ına geçmiş oluyoruz. Diğer yöntem ise mavi
simgeye sağ tıklayıp go to view'e tıklamak.
- View (all) kısmına sağ tıklayarak
istediğimiz layer ismini arayabiliyoruz.
- Kısaca project browser çoğu tasarım programındaki layer
katman sekmesine eşdeğer. Hangi katmanda olduğumuzu anlayabileceğimiz önemli
bir sekme.
Navigating views (Zoom, Pan, and Rotate)
- Fare'deki roll ile zoom in ve zoom out yapılabiliyor.
Roll'a basılı tutularak pan yapılabiliyor. 3 boyutlu görünümde ise shift
ve roll'a basılarak rotate yapılabiliyor.
- Ekranda sağda bulunan zoom simgesinden çıktı derecesine
göre yakınlaşma veya ekrandaki herşeyi görebilecek şekilde yakınlaşma gibi
birçok özellik var.
- Eğer ölçeklerin nasıl göründüğünü görmek istiyorsak
ekranın sol altında bulunan ölçeği gösteren kısımdan değiştirebiliyoruz. Ancak
text varsa text ayarıda yapmak zorunda kalıyoruz.
- Çizimde seçim yaparken shift,ctrl ve tab işlevlerini
gösteriyor. Ctrl ile ekleme , Shift ile çıkarma , Tab ile ise benzer objeleri
seçmeyi yapabiliyoruz.
- Autocad ve birçok programda olduğu gibi soldan seçerken
sadece bütünü pencereye girenler seçiliyor. Sağdan sola oluşturulan pencerede
ise pencereye giren herşey seçiliyor.
- Ayrıca çoklu seçim yapıldığında üst pencerede çıkan filter
simgesine tıklayınca seçimin içinden eleme yapılabiliyor. Örneğin; banyodaki
bütün elemanlar seçilimişse filter'a tıklayıp o seçimdeki elemanlardan
klozetleri çıkartabiliyoruz.
- Eğer seçtiğimiz birkaç şeyi kaydetmek istiyorsak filter
simgesinin hemen yanında bulunan save simgesine tıklıyoruz.
- Kaydettiğimiz bir seçimi bulmak içinde Manage
içindeki load simgesine tıklıyoruz ve kaydettiğimiz seçimler arasından
bulabiliyoruz.
Understanding selection
toggles
- Modify simgesininin altından
seçeceğimiz seçeneklerle arakada kalan veya çevresine eklenen çizimleri
kilitleme gibi bir özellik bu sayede çizimle uğraşırken herhangi bir kayma veya
değişiklik olmadan ilerleyebiliyoruz.
- Ekranın sağ altındaki 5 tane simge ise bunları kısayoldan
yapmamızı sağlıyor
Accesing Revit options
- Revit programına ait ayarların nasıl yapıldığını
anlatıyor. Revit simgesine tıklayıp en alttaki options'a tıklayıp
ulaşılabiliyor. Burada Genel ayarlar, kullanıcı ayarları, grafik ayarları,
Dosya kaydetme ayarları, render ayarları ve bunun gibi ayarlar yapılıyor.
- Eğer dosya kaydetme aralığını belirlemek istiyorsak bu
ayarlardan yapılıyor. Diğer ayarlar ise çok sık değiştirmeyeceğimiz ayarlar.
Understanding view extents and
crop regions
- Properties sekmesinden crop
view ve crop region visible simgelerini seçince bize dikdörtgen bir
çerçeve veriyor.
- Çerçeveyi görünmez yapmak için sayfanın sol altında
bulunan hide crop region simgesine tıklayıp görünmez yapabiliyoruz.
- Bu çerçeveyi istediğimiz şekilde yönetmemiz için birkaç
seçenek var. Eğer istediğimiz bir alanı çizmek istiyorsak crop çerçevesini
seçip üst menüden edit crop simgesine tıklayıp istediğimiz şekilde çizgi ekleyip
yönetebiliyoruz. Bu büyük bir planda istediğimiz alanı seçmek için çok
avantajlı bir durum.
- Eğer büyük bir planda daha istediğimiz çizgileri çizerek
yapmak istiyorsak. view sekmesi
altında callout'a tıklayıp altında
çıkan
sketch simgesindende istediğimiz çizimi croplayabiliyoruz.
Chapter 08 - Complex Walls
Creating a custom basic wall type
- Duvarların iç özelliklerine ve diğer önemli özelliklerine değinilen bir bölüm
- Bunu detaylı göstermek için 2 tarafıda tuvalet bölümü olan bir duvar ele alınmış. bu duvar diğer duvarlar gibi basic bir duvar. Duvarların özelliklerine soldaki properties bölümünden edit type bölümüne gelip duvarların özelliklerini açıyoruz.
- Açılan pencerede edit bölümüne tıklayıp kalınlık özellikleri gibi şeyleri değiştirebiliyoruz. Bu duvarın 2 tarafıda tuvalet olarak kullanılacağı için duplicate yaparak çift taraflı bir duvar elde edebiliyoruz.
- Sonrasında duvar bölümlerini değiştirmek veya eklemek için bu bölümü kullanabiliyoruz.
- Eğer strüktür bir yapı eklemediysek bunu doğru bir şekilde değiştirmek gerek.
- Örnek olarak bir hava katmanı eklenmiş (Yani binadaki rezervasyon boşluğu) bu katman yapı katmanı olmadığı içinThermal / Air layer katmanına eklenmiş.
- Duvarların katmanı ile birlikte görebilmek için ise sayfada sol altta bulunan simgeye tıklayıp medium seçeneği ile duvar detaylarını görebiliyoruz.












Understanding stacked walls
- Basit duvarlarda tek bir özellik boydan boya yapılıyordu. Ama birden çok özelliği barındıran duvarlar yapmak için stacked wall yapmak gerek.
- Videoda ilk başta 3 tane farklı basit duvar gösteriyor. Betonarme - Tuğla - Parapet duvarı . Bu 3 duvar tek başına yapılabiliyor. Ama bunu tek bir duvarın içinde yapmak için project browser kısmından families - wall - stacked wall seçeneği seçip duplicate yapıyoruz. Duplicate yapmamızın nedeni yeni bir duvar oluşturacağımız için öncekinin kaybolmasını engellemek. Bunuda yaptıktan sonra sağa tıklayıp rename yapıp, yeniden isimlendiriyoruz.
- Duvarın özelliklerini değiştirmek veya yeni bir katman eklemek için sağa tıklayıp type properties yapıyoruz.
Açılan pencerede insert yapıp yeni bir duvar katmanı ekleyebiliyoruz.
- Bu katmanlar basit duvarlardan seçiliyor. Ancak birleşiminde problemler oluşabiliyor. Bunları manuel olarak tek tek hesaplayıp özel ölçüler vererek düzeltebiliyoruz. Ancak bu işi daha hızlandıran bir komut var; offset bölümünden birleşimlerin yerini değiştirebiliyoruz.
- Bu yaptığımız özel duvarı çizime uygulamak için bütün duvarları tab tuşuyla seçip properties bölümünden yaptığımız duvarın ismini seçip değiştirebiliyoruz.












Adding curtain walls
- Curtain wall , büyük boşlukların aluminyum doğrama ile doldurma hali gibi özellikleri sağlıyor. Bunu yaparken her zamanki wall bölümünden curtain wall seçeneğinin içinden storefront seçildi.
- Çizilen duvar diğer duvarlar gibi boyu ve genişliği rahat bir şekilde değiştirilebiliyor. Ancak ne kadar uzun olursa o kadar eşit parça halinde pencere oluşuyor. Bunun nedeni edit type bölümünden yatay ve dikey olarak hangi maksimum uznuluğa sahip olmasını belirtmek. Aynı menüden profillerinde hangi kalınlıkta olacağını belirleyebliyoruz .
- Daha sonra bu duvarı bir duvarın üstüne çizdiğimiz anda bize sonucu veriyor. Sonrasında yine aynı şekilde kolayca uzunluğunu ve genişliğini değiştirebiliyoruz.
- Çatı ile aynı eğimde olmasını veya bunun gibi farklı şekillerde olmasını istiyorsak çizdiğimiz duvarı seçip sağ üst menüde bulunan edit profile kısmında tıklayıp pick point komutu ile seçitiğimiz çigiye uyumlu bir çiizm yapabiliyoruz. Tabiki bu çizgiyi oluştururken yine trim , extend komutlarıyla oluşturabiliyoruz.












Adding curtain grids, mullions, and panels
- Duvara açılacak olan bir bölümün gridini ve çizgileri özel olarak çizmek istenildiği zaman curtain wall - curtain wall kısmı sayesinde yapılıyor.
- Bunu curtain wall bölümünden yaparken hata veriyorsa cut geometry bölümünden düzeltilebiliyor.
- Plan üzerinden değişiklik yapmak zor olduğu için bunu görünüşlerden yapmak daha hızlı ve düzenli oluyor.
- Görünüşe geçtikten sonra açılan curtain wall , curtain grid sayesinde istenilen şekilde çiziliyor.
- Bu çizimin biraz orantılı olması isteniyorsa align dimension kullanılarak istenilen grid boyutuna getiriliyor.
- Eğer bu açılan boşluğa kapı koymak istiyorsak ; add - remove bölümünden istenilen çizgiler silinebiliyor.
- Sonrasında açılan boşluğa kağı koymak için çizgiyi tab tuşuna basarak seçiyoruz ve soldaki properties bölümünden kapıyı seçebiliyoruz.
- Eğer panel olmasını istiyorsak yine tab tuşuyla seçip sağ tık ile select panels bölümüne geliyoruz. Burada karşımıza 3 tane seçenek çıkıyor. istenile yönde seçilip sonuca ulaşabiliyoruz.
- Daha sonra sol bölümden properties - panel - solid seçebiliyoruz.
- Bu değişikleri görebilmek için görünümü sol alt bölümden shaded yapmak gerekiyor.
- Sonrasında çizgi halde olan bölümleri profile çevirebilmek için curtain wall mullion seçip istenilen çizgileri profile çeviriyoruz.
- Modify bölümünden ise profilleri birleştirme veya ayrı ayrı profil çizme işlemlerini gerçekleştirebiliyoruz.



















Creating wall sweeps and reveals
- Bu bölümde genelde dış duvarlara uygulanancak olan çıkıntı ve içe doğru oluşacak boşlukların yapımı gösteriliyor.
- Bunu yaparken duvar tipine edit type bölümüne gelip görünümü sol alattaki bölümden view:section yaptıktan sonra sweep bölümünü açabiliyoruz. sweep menüsü açılınca karşımıza nereye hangi yüksekliten ne kadar uzağa konulacağına dair ve malzeme bilgisine dair bir menü çıkıyor.
- Bunları belirledikten sonra bu işlem seçilen tipteki bütün duvarlara uygulanıyor. Eğer uygulanmasını istediğimiz bir duvar varsa properties bölümünden duvar tipini değiştirebiliriz.
- Aynı şekilde wall - reveal yapıp duvar üzerinde çukur oluşturabiliyoruz.












Model lines
- Bu bölümde görünüşte referans çizgiler oluşturmayı sağlayacak komutlar gösteriliyor.


Chapter 09 - Visibility and Graphic Controls
Using object styles
- Bu bölümde kesitlerdeki çizgi kalınlıklarının nasıl değşitirildiğini anlatıyor.
- Manage - object styles bölümünden açılan pencereden değişiklik yapıp çizgi kalınlıklarını ayarlayabiliyoruz.




Working with visibility and graphic overrides
- View - Visibility/Graphics bölümünden açılan pencere ile çizimdeki elemanların görünümünü düzenleyebiliyoruz. (Kısayolu v + g)
- Açılan pencerede elemanları seçip sadece o elemanlardan bir çizim yapmak için hangi level da ise o level'a sağ tıklayıp duplicate view , duplicate veya duplicate details seçeneği ile yeni bir level oluşturup sadece tefriş veya sadece elektrik elamanı gibi ayrı ayrı çizimler oluşturabiliyoruz. Duplicate details tefriş için kullanılıyor.
- v + g kısayolu ile pencereyi açtığımız zaman sap tarafta bulunan halftone bölümünden silik görünmesini istediğimiz elamanları seçip çizim kalitesini yükseltebiliyoruz.






Using view templates
- Eğer çizimde zemin üzerinde bir hatch varsa ve bu hatch'i değiştirmek istiyorsak ; v + g bölümünden açılan pencere ile projection/surface , pattern sekmesinden saklayabiliriz . Floor çizgisini silmek iyi bir çözüm olmayacaktır .
- Eğer görünümde bir değişiklik yaptıysak ve bu değişiklikleri aynı şekilde diğer katlara uygulamak istiyorsak; view, view templates, create bölümünden ait olunan katın özellikleri yeni bir isimde kaydedilir ve uygulanacak kat açılıp view,view templates, apply bölümünden uygulanır.
- Yaratılan bir görünüm özelliğinde değişikliği yapmak için ise view, view templates, manage, V/G overrides model üzerinden type içerinde değişiklik yapılabilir. Ör, Tefriş çizgileri silik hale gelebilir.
- Görünüm içerisinde değişiklikleri uygulamak için alttaki simgelerden Enable temporary view properties özelliğini açmak gerekiyor. Eğer değişikliği onaylıyorsanız, aynı simgeden restore view properties tıklayıp değişikliği kaydediyorsunuz.














Hiding and isolating objects in a model
- Model'de bir objeyi veya elamanı saklamak veya sadece o elemanları göstermek için objeyi seçtikten sonra sayfanın altında görünen gözlük işaretine tıklayıp saklayabiliyoruz. hide elements; seçilen tek elemanı saklar. hide category ; eğer bir kolon seçiyorsanız bütün kolonları saklar. isolate elements/category ise aynı işlevlerin tersini uygular ve sadece seçilen elemanı veya kategoriyi gösterir.
- Kesit çizgisi, Aks çizgisi gibi işaretleri görünüşte gizlemek için ise önce seçip soonra üst menüdeki modify/views bölümündeki ampül simgesine tıklayıp seçilen kesit çizgisi veya bütün kesit çizgilerini saklayabilirsiniz.
- Tüm bu saklanan objeleri görmek için ise alt menüdeki gözlüğün yanındaki ampül simgesine (reveal hidden elements) tıklayıp saklanan kesit çizgilerini ve benzeri şeyleri görebilirsiniz ve görünür yapabilirsiniz.






Understanding view range
- Sol taraftaki menüden Floor planı seçip extents bölümündeki view range yazısının yanındaki edit'e tıklayıp katların hangi yükseklikten plan olarak algılandığını görebilirsiniz ve değiştirebilirsiniz.
- Bazı özel durumlarda planın çizildiği yüksekliğin bazı bölümlerde manuel olarak değişmesi gerekir; bu yüzden seçilen katta iken ; view, planviews, plan region seçilip istenilen bölge çizilir. Ardından modify/plan region, view range bölümünden yüksekliği belirlenir . Bu sayede istenlen yere istenilen yükseklikteki çizim aktarılabilir.




Displaying objects above and below in plan views
- Kat seviyesi seçildikten sonra sol taraftan extents,view range ile seçilen objeyi istenilen yüksekliğe getirip görünümünü değiştirebiliyoruz.
- Aynı şekilde bu işlemi kesit için de uygulayabiliyoruz.


Using the Linework tool
- Planlarda altta kalan katın veya üstte kalan katın çizgilierini yönetmek için soldaki menuden graphic, underlay üzerinden değişiklik yapabiliyoruz. graphic,underlay orients üzerinden çizgi kalitesini değiştirebiliyoruz.
- Sol üstteki mouse işaretinin altındaki modify bölümünden underlay objects sayesinde underlay objeleri görebiliyoruz ve üst menüdeki modify bölümünden Linework sekmesi ile line style seçeneklerini görebiliyoruz.






Using cutaway views
- 3D görünümünde iken bir section veya planı 3 boyutlu görmek için önce 3D layerına geliyoruz veya üstteki satırdan 3D görünüme geçiyoruz. bu görünümü sağ tıklayıp duplicate view, duplicate yapıp çoğaltıyoruz.
- Ardından sağ tarafta bulunan küp üzerine sağa tıklayıp; orient to view üzerinden istediğimiz level'a 3 boyutlu ulaşabiliyoruz. Sonra küpün köşesine tıklayıp güzel bir açı yaratabiliyoruz. Oluşturduğumuz section'ı da 3 boyutlu hale giterebiliyoruz.
- 3 boyuttaki sectionda sol attaki simgelerden görünümü shaded veya başka bir şekile getirebiliyoruz.
- Ayrıca referans bir dikdörtgen kesit çizgisini istediğimiz şekilde değiştirebiliyoruz. Eğer o kutucuğu görmek istemiyorsak ; seçip üst menüden hide elements ile saklayabiliyoruz.







Using sketchy lines
- 3 Boyutlu görünümü daha estetik hale getirmek için alt menudeki dikdörtgenler prizmasına benzeyen simgeye (visual style)tıklayıp graphic display options üzerinden bir pencere açabiliyoruz.
- Bu pencerede görünümü wireframe,shaded gibi yapma seçeneklerinden fazla olarak sketchy lines ile sketch efekti verebiliyoruz. Jitter ve extension bölümünden sketchin kalitesini değiştirebiliyoruz.
- Çizgileri saha yumuşatmak için pencerenin üst bölümünde bulunan smooth lines with anti aliasing kutucuğunu işaretleyerek yapabiliyoruz.
- Shadow bölümünden gölge verip daha efektif hale getirebiliyoruz.






Chapter 10 - Rooms
Adding rooms
- Üstteki bölümde room & area panelindeki room simgesine tıklayarak oda bilgilerini açabiliyoruz.
- tag on placement simgesiyle istedeiğimiz odaya bilgi ekleyebiliyoruz. Eğer oda olmayan bir yere yerleşirse herhangi bir bilgi vermiyor.
- Bazı durumlarda oda çok büyükse ve duvar olmadan bölmek istiyorsak; yine room & area bölümünden room seperator simgesini seçip çizgilerle odayı ayırabiliyoruz.
- Oda bilgilerini sol taraftaki bölümden identity data kısmındaki area bilgisiyle öğrenebiliyoruz. Aynı şekilde varolan odanın adını veya numarasını değiştirmek için tıklayıp değişiklik yapabiliyoruz . Sol taraftaki number, name sekmesinden değiştirebiliyoruz.











Controlling room numbering
- Room separator ile çizilen çizginin rengini veya kalınlığını değiştirmek için çizgiye tıklayıp üst menudeki fırça simgesine tıklayıp (override graphics in view) override elements veya category ile seçilen çizgiyi veya aynı özelliklteki tüm çizgileri değiştirebiliyoruz.
- room sekmesine girip tag elements ile room oluşturunca room 1 olarak başlıyor ve 2,3,4 diye devam ediyor. Ama eğer odanın adını değiştirip devam ederseniz ona göre uyum sağlıyor. Örneğin; ilk tagteki room'u 101 yaparsanız. ondan sonra eklenen 102,103,104 olarak devam ediyor.
- Çizimi seçip üst menudeki filter simgesinden check none ardından room kutucuğunu seçerseniz seçilen bölge içindeki bütün roomları elde etmiş olursunuz. ve toplu isim değiştirip ofis, tuvalet gibi oda isimlerini kısayoldan yazabilirsiniz.
- Peki 1.kattaki bu isimlendirmeyi 2.kata nasıl aktarabiliriz ? 2.kata gelip ilk bir odayı isimlendirmek gerekyor. Ör; 201 . Ardından tek tek yazmak yerine 1.kattaki hali hazırdaki 4 tane ofis odasını seçip (nasıl seçilieceğini üstte gösterdi) paste simgesinin yanındaki copy clipboard simgesine tıkladıktan sonra 2.kata gelip paste, align to current view işlemi ile kısayoldan 202,203,204 gibi devam eden isimlendirmeler yapılabilir.











Understanding room bounding elements
- Giyinme odası veya ona benzer küçük odaları alana dahil etmek için arada kalana duvarları seçip sol menüdeki walls, room bounding sekmesini kapatmalısınız.

Chapter 11 - Schedules and Tags
Understanding tags
- Yapı elemanlarına etiket koymak için tag komutlarını kullanıyoruz. Üstteki menüden Annotate,tag,tag by category ( t+g ) komutlarını kullanalarak tag oluşturuyoruz.
- Örneğin kapının üstüne tıklayıp tag eklediğimizde 1,2,3 diye giden numaralar ekliyor. Ancak bu numaralar çizimde kapıyı oluşturma sırasına göre ilerliyor. Yani tag koyma sırasına göre ilerlemiyor.
- Numarayı değiştirmek istersek tıklayıp soldaki properties bölümünden identity data, mark bölümünden sayısını değiştirebiliyoruz .
- Pencerede ise pencerenin tipine göre numaralandırıyor. Bu yüzden aynı tipteki pencere ör; 24 numara veriyor. Pencerenin tipini değiştirirsek numarası da değişiyor.
- 24 numara yerine başka numara vermek için ise tag'e tıklayıp soldaki properties bölümünden edit type'a tıklayıp açılan pencereden identity data,type mark bölümünden istediğimiz sayıyı verebiliyoruz.
- Eğer A numaralı bir duvara tıklarsak ve numarasını değiştirmek istersek karşımıza bir uyarı penceresi çıkıyor ve yapılacak değişikliklerin diğer pencerelere yansıyacağını söylüyor. Onaylarsak aynı tipteki pencerelerin numarasını değiştirebiliyoruz.
- Eğer tek bir duvarın numarasını değiştirmek istiyorsak , tipini değiştirmek zorundayız.
- Eğer tek tek numaralandırmak istemiyorsak Annotate,tag,tag all sekmesinden bütün yapı elemanlarını tek bir hamle ile numaralandırabiliyoruz. leader kutucuğu seçilmemeli .
- Tag'in büyüklüğünü değiştirmek için tag'e sağa tıklayıp select all instances, visible in view diyerek aynı tipteki tagleri seçiyoruz ve soldaki properties bölümünden büyüklüğünü değiştirebiliyoruz.
- Tag'e tıklayıp soldaki properties , edit type bölümünden tag'in özelliklerini düzenleyebiliyoruz.















Adding schedule views
- Çizimdeki elemanları bir tablo üzerinde görmek için schedule komutunu kullanmak gerekiyor. Üst bölümde bulunan view bölümünden create,schedules,schedule/quantities ile schedule a ulaşabiliyoruz veya sol attaki project browser bölümünden schedule/quantities bölümüne sağa tıklayarak yeni bir schedule açılabilir.
- Schedule ile açılan pencerede sadece architecture seçmek daha kolay olacaktır. Ardından elemanları ve istediğimiz filtreleri seçebiliyoruz.
- Sonucunda bir tablo çıkıyor ve tablo üzerinden yapılan değişiklikler çizime direk yansıyor ve senkronize çalışıyor. Sandalyenin tipini değiştirip yatağın boyutunu değiştirebiliyoruz.
- Ayrıca hepsine isim verip çizimde bulunmasını kolaylaştırabiliyoruz.














Chapter 12 - Annotation and Details
Adding text
- Annotate,text bölümünden bir text oluşturabiliyoruz ( t + x ) yazdıktan sonra boş bir yere tıklamak gerekiyor , esc veya enter tuşuna basmamak gerek.
- Text'e tıkladığımızda sl taraftaki properties bölümünden fontun büyüklüğünü değiştirebiliyoruz. edit type'a tıklayarak daha detaylı değişiklikler yapılabiliyor.
- Text'e tıkladığımızda üst menude +A simgesi ile ok ekleyip çıkartabiliyoruz ve okun kaç tane olacağını açısını vb gibi özellikleri edit type üzerinden yapabiliyoruz.
- Bazı durumlarda yazının arkasına beyaz bir arkaplan gerekirken bazen transparan olması gerekebiliyor. bu işlemleri de edit type üzerinden yapabiliyoruz.







Adding Dimension
- Annotate,dimension,Align bölümünden ölçü vermeye başlayabiliyoruz ( d+i ).
- Ölçü verirken modify | place dimension bölümünden duvarın yüzeyinden mi yoksa ortasından mı ölçü almasını seçebiliyoruz.
- Eğer ortasını seçtiysek ve ölçü verirken spesifik bir yerde yüzeyden ölçü vermek istiyorsak. tab tuşuna basarak istediğimiz tarafı seçebiliriz.
- İşimizi çok hızlandıracak bir bölüm; eğer duvardaki bütün detaylarla beraber ölçülendirmek istiyorsak modify | place dimension bölümünden entire wall kısmını seçersek bütün duvarı kolayca ölçülendirebiliyoruz. Aynı şekilde options bölümünden intersect wall veya intersect grid bölümünü seçerek iç duvarların kalınlığını veya gridleri de referans alarak ölçülendirebiliyoruz.
- Bir duvarda çok açıklık varsa ve ölçüler çok dipdibe ise ölçülerin altında bulunan noktayı çekerek istediğimiz yere yerleştirebiliyoruz.
- Eğer ölçüler arasından birisini seçmek veya silmek istiyorsak tab tuşuna basıp seçip silebiliyoruz.
- modify dimension,edit witness lines bölümünden manuel olarak devam eden bir şekilde ölçülendirebiliyoruz .
- Ölçüye sağ tıklayınca dimension text penceresi açılıyor. Bu pencerede ölçünün altına ,sağına, soluna isim yazıp daha tanımlı bir ölçülendirme yapabiliyoruz.













Adding symbols
- Çizime kuzey noktası, ölçek veya buna benzer semboller eklemek için annotate sekmesinden sağda bulunan symbols seçiliyor . İstenilirse load family'den semboller yüklenebiliyor.





Adding legend views
- Schedule için bir lejant oluşturmak için soldaki project browser bölümünden legend'a gelip sağ tıklayarak yeni bir legend oluşturulabilir veya üst menüden view,create,legend simgesine gelip oluşturulabilir.
- Legend oluşturulunca bembeyaz bir sayfa ile karşılaşıyoruz. Buraya istediğimiz elemanın görünüş,plan veya kesitini koyabiliyoruz . Bunun için annotate,detail,component,legend component adımlarını takip ediyoruz. Sonra family bölümünden istediğimiz kapının veya başka bir elemanın hangi görünüş olduğunun seçip yerleştiriyoruz .
- Uzunluk ve isim bilgileri gibi özellikleri girdikten sonra legend oluşmuş oluyor.
- Sonrasında bu legend'ı schedule'a aktarmak için project browser da legendı bulup schedule sayfasına sürükleyebiliyoruz.








Creating a detail callout
- view,create,callout kısmından bir dikdörtgen seçim ile detaylı göstermek istediğimiz alanı seçiyoruz.
- Seçtiğimiz anda hangi kattaysak project browser'da yeni bir callout layerı açıyor. F2 kısayolunu kullanarak yeni bir isim verebiliyoruz .
- callout layerını açtığımızda 2 tane dikdötgen ilşe sınırlandığını görüyoruz. Bunları saklamak yada göstermek için alt tarafta buluna hide crop region veya show crop region simgelerini kullanabiliyoruz. properties penceresinin extents kısmında da aynı işlemleri yapabiliyoruz.
- Eğer bir yazı yazmak istersek o yazının crop çerçeveleri içinde olcağına emin olmamız gerek. properties penceresinin extents kısmında annotation crop ile sınırsız bir yazı alanı da oluşturabiliyoruz .









Adding detail components
- Detay çiziminde eleman eklemek için; annotate,component,detail component kısmını seçmemiz gerekiyor.
- Üst menüde bulunan load family kısmından istenilen detayın kesit,plan veya görünüşüne ulaşabiliyoruz. Sonrasında move komutuyla istenilen noktaya titiz bir şekilde yerleştirebiliyoruz.








Using arrays to duplicate objects parametrically
- Merdiven basamağına konulan bir detayı diğer basamaklara da uygulamak için detaya tıklayıp , modify bölümündeki array komutuna tıklamamız gerekiyor ( AR ).
- Tıkladığımızda bize lineer mi olacağını , sayısını , 2.ciyi referans alarak mı yoksa sonuncuyu referans alarak mı array yapacağını soran bir satır var. constrain kutucuğu işaretlenmezse daha rahat array yapılabiliyor. Aksi takdirde dikey ve yatay olarak yapabiiyoruz.
- Array işleminden sonra sayısını istediğimiz gibi değiştirebiliyoruz. Ayrıca arraylı bir detay yer değiştirdiğinde diğer array objeleride ona uyumlu yer değiştiriyor. ,
- Eğer array içindeki objede bir değişiklik yapmak istiyorsak edit group kısmına gelip ekleme veya çıkarma yapabiliyoruz. edit type kısmından ise uzunluğunu değiştirme gibi daha detaylı işlemler gerçekleştirebiliyoruz.









Adding filled and masking regions
- Bazı detaylarda çok karışıklık yaratmaması adına bazı bölümler maskelenir . bunun için; annotate,region,masking region veya filled region tıklayıp istediğimiz bölümü çiziyoruz.
- Çizerken çizgi kalınlığını değiştirip daha kaliteli bir detay çizimi yaratabiliyoruz.
- Çizdikten sonra maske en üst katmanda olacağı için herşeyi kapatır. Bu yüzden seçip arrange kısmından bring to front veya bring to back seçenekleri ile istenilen aralığa koyulabilir.
- Bu sayede hataların üstünü örtme veya çizimi çamurlaştırcak çizgi kalabalığının önüne geçilmiş olur.







Chapter 13 - The Basics of Families
Creating a new family from a template
- Yeni bir family oluşturmak için reviti açınca ana sayfadan new, family veya sol tarafta bulunan families sekmesinin altından new simgesine tıklayıp yeni bir family oluşturabiliriz.
- Burada menüde arcchitecture yerine create sekmesi var ve daha farklı komutlar mevcut.
- 4 tane görünüş var bu yüzden bunların hepsini birarada görmek için w + t ardından z + a ile daha kolay çizim yapabiliriz.
- Dosyayı kaydederken ise options kısmına tıklayıp maximum backups seçeneğini 1 seçip source seçeneğini 3d views yapmalıyız.









Using reference planes, parameters, and constraints
- Oluşturulacak family referansları için birkaç tane reference plane r + p yerleştiriyoruz (genişlik ve uzunluk için).
- Align dimension ile aralıkların ölçüsünü alıyoruz. Alırken EQ yazısına tıklıyoruz ki uzunluk değişse bile oranlar aynı kalsın.
- Yazıları daha iyi görebilmek için ölçeği sol alttan büyütebiliriz.
- Dimension'a tıklayıp üstte oluşan satırda label simgesinden add parameter 'a tıklayıp seçilen ölçü uzunluk veya genişlikse adını değiştiriyoruz. Açılan pencereden edit tooltip deyip detaylı bilgisini yazabiliyoruz.
- Uzunluk ve genişlik parametrelerini eklediten sonra çeşitlerini kaydetmek için; modify, family types üzerinden açılan pencereden new diyerek yeni çeşitleri ekleyebiliyoruz. ( birden farklı uzunlukları )











Adding solid geometry
- Eğer bir masa yapacaksak ve masa yüzeyini oluşturmak istyiorsak kesitte bir reference plane yaratıp bu planeleri kitle simgesiyle kitleyip kalınlığının değişmesini engelleyebiliyoruz.
- Extrusion komutu ile basit bir dikdörtgen veya başka bir şekil çizebiliyoruz.
- Set work plane komutu ile bir çalışma yüzeyi oluşturuyoruz. Masanın kenarının kesik bir biçimde devam etmesi için sweep komutunu seçip bir yörünge çiziyoruz ( offset komutu ile masa tablasından dah büyük çizebiliyoruz.)
- Sonrasında bir artı işareti oluşuyor. o işarete tıklayıp o bölüme bir rail ekliyoruz (load profile bölümünden).
- Raili istediğimiz yere yerleştirip kesik kenarlı bir masa yüzeyi yaratmış oluuyoruz.












Cutting holes using void geometry
- Eğer masa yüzeyinde bir delik açmak istiyorsak (örn, bilardo masası gibi); void forms, void extrusion kısmını seçip istediğimiz şekli çizebiliyoruz. working plane zemin seviyesinde başlar. Ancak onu değiştirmek için edit workplane üzerinden hangi seviyeden sonra delik açılmak isteniyorsa o seviye seçilir.
- Extrusion turuncu renkte görünür. kesmek için cut komutunu kullanıp istenilen geometri elde edilebilir.






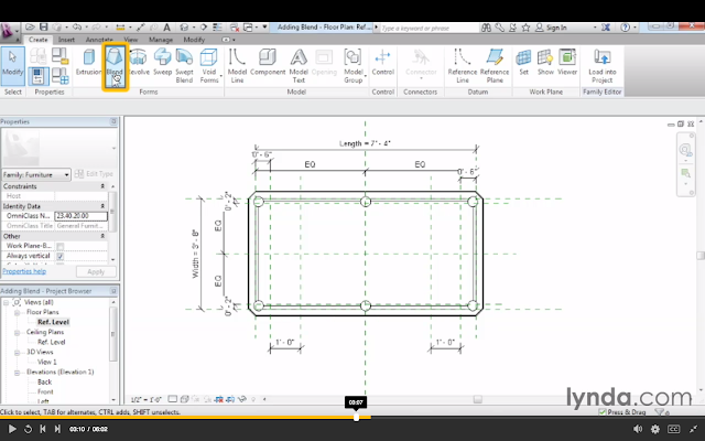
Adding blends
- Bilardo masasının ayaklarını yapmak için blend komutunu kullanıyoruz.
- İlk başta ayakların geleceği yerleri reference plane ile hizalayıp kilitliyoruz.
- Mirror komutu ile aynısını diğer tarafa kopyalıyoruz.
- Blend bizden alt ve üst çizimi istiyor. il açıldığında alt kısmı çizmeye başlıyoruz.
- Edit top bölümünden üst kısımı kenarları oval bir dikdörtgen yapıyoruz.
- İşlem bittiğinde ayaklar bilardo masasının üstünde görünüyor. Edit workplane kısmından tabanını değiştirip , görünüşlerden ise uzunluğunu anında değiştirebiliyoruz.











Completing the family
- Yapılan bir family üzerinden ekleme veya başka bir dosyaya yüklemeyi gösteriyor.
- Bilardo masasının tabla rengini değiştirmek için objeyi seçip properties, material kısmından rengini değiştirebiliyoruz. graphics ve apperence kısmının renklerinin aynı olması önemli. o yüzden render rengini ayarlayınca use render settings kutucuğunu seçmek yeterli .
- Masaya top ve ıstaka eklemek için component seçip çıkan pencereye yes dedikten sonra dosyayı bulup yerleştiriyoruz.
- Daha sonra bütün bu objeyi beraber bir yapıya eklemek istiyorsak load into project simgesine tıklayıp istediğimiz projeye ekleyebiliyoruz.













Chapter 14 - Sheets, Plotting, and Publishing
Adding sheets
- Baskıya hazırlamak için bir sheet oluşturmak gerekli. Sheet içinde kesitler planlar ve diğer sayfalara ait bilgileri ekleyebiliyoruz.
- Soldaki project browser bölümünden sürükleyip istediğimiz sheet üzerine atabiliyoruz. Sectionları soldaki properties, graphic, detail numbers üzerinden kesite isim verebiliyoruz.
- Yeni bir sheet oluşturmak için soldaki sheet (all) bölümüne sağ tıklayıp new sheet yazısına tıklıyoruz. Aynı şekilde oluşturulan sheet üzerinde sağ altta bulunan dikdörtgen bölümden isimlerini ve özelliklerini değiştirebiliyoruz.
- Yeni oluşturulan sheet üzerine yeni bir çizim eklemek için; view,sheets,place view simgesi ile istenilen çizim eklenebiliyor.
- Ayrıca view,create,schedule, sheet list üzerinden bütün sheetlerin hangi özelliklerini istiyorsak bir tablo oluşturabiliyoruz. Aynı şekilde sürükleyip bırakarak istediğimiz sayfaya bu tabloyu ekleyebiliyoruz.
- Tabloya tıklayıp sağ tarafında çıkan z harfine benzeyen simge ile tabloyu 2 ye bölebiliyoruz.
















Working with placeholder sheets
- İlk bölümde varolan sheet ler üzerinde değişiklik yaptık. Bu bölümde bu sheetleri nasıl oluşturduğumuzu gösteriyor.
- Project browser, sheet(all) kısmına sağ tıklayıp new sheet diyip yeni bir sheet oluşturabiliyoruduk. Buna ek olarak sheet (all) bölümüne tıklayıp rows, insert, data row diyip yeni bir sheet oluşturabiliyoruz.
- Schedule içindeyken sağ tarafta bulunan new sheet simgesine tıklayıp select placeholder sheets bölümünden hangi sheeti istiyorsak ekliyoruz. Eklenen sheetler ıproject browser bölümünde tek tek yer alacaktır.
- Oluşturulan sheet üzerine bir plan ekledik ve planda bazı çizgileri görmek istemiyorsak sheetin herhangi bir yerine sağ tıklayıp activate view üzerinden istediğimiz çizgiyi view bölümünden hide in view yapıp ardından yine sağa tıklayıp deactivate view diyip bitiriyoruz.










Aligning views with a guide grid
- Herhangi bir sheet üzerindeyken sheet compositon üzerinden bir grid oluşturuyoruz.
- Properties kısmından Guide spacing ile aralığını değiştirebiliyoruz.
- Başka bir sheet üzerinde guide grid üzerinden aynı gridi ekleyebiliyoruz.
- Bu işlemin önemi sheetlerin içindeki çizimleri hizalamak. Bunun için gridin herhangi bir noktasına bütün çizimleri move komutu ile hizalayıp . üst üste geldiği anda okuması kolay planlar oluşturmak.






Outputting sheets to a DWF file
- Sol üstteki revit logosu export, dwf diyerek exportlyabiliyoruz. Açılan pencereden in session seçeneğini seçersek istediğimiz görüntüyü exportlayabiliyoruz. İstersek bütün görüntüleride exportlayabiliyoruz.
- Dwf viewer programında dwf formatını açabiliyoruz. Ama autocad formatı gibi üzerinde yapılacak değişiklikler sadece not alma gibi değişiklikler. Bu önemli çünkü autocad bulunmayan bilgisayarlara ve sadece görüntelemek isteyenler için iyi bir seçenek.











Exporting to AutoCAD
- Sol üstteki revit logosu, export, cad, dwg ile autocad formatında exportlayabiliyoruz.
- Yine aynı şekilde hangi çizimleri seçeceğimizi in session seçeneği ile yapabiliyoruz.
- Ancak autocad çiziminde daha detaylı ayar yapabilmek için select export setup ile daha detaylı ayarlara ulaşabiliyoruz.
- Layers, lines, patterns, texts, color, solid, units, general seçenekleri ile istediğimiz değişikliği yapabiliyoruz. Solid - ACIS solids . General, export rooms and areas as polylines seçeneklerini seçmemiz önemli.
- Next dediğimiz an ismini verip exportlayabiliyoruz ancak son hamle export views on sheets and links as external references seçeneği seçili olmalı.









Plotting and creating a PDF
- PDF formatında çıktı almak için revit logosu, print seçeneği ile pdf formatında çıktı alabiliyoruz.
- Açılan pencerede sayfa boyutu yapısı rengi vb gibi birçok özelliği değiştirebiliyoruz.
- Önemli noktalardan birisi ; print range , selected views seçili olması istenilen çizimi pdf yapma olanağı sağlıyor.
- Son önemli nokta ise Fit to page yerine %100 zoom yapmak daha mantıklı.







Chapter 03 - Starting a Project
Creating a new project from a
template
- Revitte yeni dosya açarken karşımıza çıkacak 3
template'den bahsediyor.
- Birincisi en sık kullanacağımız architectural template
- İkincisi constraction template; burada
ayarlar biraz daha geniş ve layer katmanları daha fazla. Eğer birden fazla
değişik kapı oluşturduysak bunun listesine bu template ulaşabiliyoruz. Ve bize
hangi ölçüdeki kapıdan kaç adet olduğunu gösteren bir layer veriyor.
- Üçünsü ise yeni dosya açarken browse tuşuna tıklayınca
ortaya çıkan commercial template. Bu template de ise kağıt boyutlarına göre
kesit imkanı veriyor ve diğer templatelere göre en karmaşığı bu.
Accessing a multiuser project
using worksharing
- Ortak paylaşımdaki bir dosya nasıl yaratıldığını ve
yapılan değişiklerin nasıl kaydedildiğini öğretiyor.
- ilk başta bilgisayarda paylaşmak istediğin dosyayı
seçiyorsunuz. Ardından dosyayı eklerken create new local kutusunu
işaretliyorsunuz. Sonrasında yaptığın değişiklikleri kaydedebiliyorsun.
Configuring project settings
- Eğer template olarak commercial template seçilip bir
dosya açılırsa, Çıktıda görünecek dosya adı ve diğer bilgileri manage
sekmesinin altındaki project information kısmına girerek değiştirebiliyoruz.
- Projenin yerini ise yine manage sekmesinde bulunan
location
simgesine tıklayarak harita üzerinden belirleyebiliyoruz. Bu bize
ileride gölge ve iklim ayarları yaparken yarar sağlayacak.
- Diğer önemli nokta ise projeyi kaydederken options
butonundan backup sayısını azaltmak. Çünkü bu durum kaydedilen her dosyayı
yeni dosyaymış gibi kaydediyor. Bu da 20-25 kere kaydettiğimiz dosyanın
gereksiz bir şekilde yer kaplaması demek.
Adding Levels
- Architecture sekmesinin
altındaki level simgesine tıklayarak yeni bir kod girebiliyoruz. Kısayol
olarak ise LL tuşlayarak yapabiliyoruz.
- Koda 2 kere tıklayarak ismini ve
yüksekliğini rahatça değiştirebiliyoruz.
Adding Grids
- Çok karmaşık ve büyük olan
projelerde gereksinim duyulan aks belirtme ihtiyacı için grid önemli bir komut
- Architecture sekmesinin
içinde bulunan grid simgesine tıklayarak ulaşılabiliyor. 1 den başlayarak
sırayla otomatik isimlendiriyor. Eğer buna A ile başlanırsa B, C, D olarak
devam ediyor. Bu da yatay ve dikey eksenleri isimlendirirken çok yararlı
oluyor.
- Eğer binanın planı çok karışıksa
ve farklı bir aks'a ihtiyaç varsa bunuda yapmak için grid'e tıklayıp en üstte
sağda bulunan multi
segment'i seçerek yapılabiliyor.
Refining a layout with temporary dimensions
- Akslar arasındaki uzaklığı
belirlemek için aksı seçip ölçüyü direkt olarak girebiliyoruz.
- Akslarda bulunan dairelere
tıklayınca ise sağa sola veya ortaya göre hizalayabiliyoruz. Yani ölçmek
istediğimiz yerin özelliklerine göre hızlı bir şekilde ölçü alabiliyoruz.
Adding Columns
- Architecture sekmesinin altından
column'u seçerek 2 tür kolon seçebiliyoruz. Kolonlardan birisi Structural
diğeri ise architectural .
- Kolonları koyarken properties penceresinin altından move with
Grids seçilirse grid hareket ettiği zaman kolonlarda beraber hareket
ediyor.
- Structural column açıkken
architectural kolonların içine structural kolon koyabilimek için at
columns simgesine tıklamak
gerekiyor.
- Structural kolonları döndürmek
için space
bar tuşuna basmak yeterli.
Chapter 04 - Modeling Basics
Adding Walls
- Architecture sekmesinin altından
wall simgesine tıklayarak bir wall seçebiliriz veya w ve a tuşlarına basarak
kısayoldan duvar oluşturabiliriz.
- Duvarı oluştururken chain kutusu
seçilmeli
- Çizgisel, dikdörtgen, çokgen,
daire ve ark şeklerinde birçok duvar oluşturulabiliyor.
- Properties sekmesinde herhangi
bir duvar seçildiğinde top constraints sekmesinde up to
level 1 veya istenilen leveller seçilebiliyor. Bu durum, duvarların verilen
yüksekliklere kadar gittiğini gösteriyor. Leveller kaydırıldığı zaman otomatik
olarak duvarında yüksekliği değişiyor.
- Ekranın sol altında bulunan
dikdörtgen şeklindeki ufak simge ( detail level ) çizilen duvarların ne
kadar detaylı göstereceğini gösteriyor. Coarse, Medium, Fine gibi 3 seçenek ile
değiştirilebiliyor.
Using Snaps
- Snap durumu ile çok alakalı
olmasada z + f tuşuna basarak
zoom to fit yapabiliyoruz.
- Snap ayarlarını modify
simgesinin 2 yanındaki snap simgesinden ulaşabiliyoruz.
Burada istediğimiz aralıkta bize referans vereceği değerleri girebiliyoruz.
- Ayrıca intersection, endpoint,
midpoint gibi birçok referansları açıp kapatabiliyoruz.
- Bu durumların kısayolları
mevcut. Örnek olarak s + m kullanarak midpointleri
görebiliyoruz.
Wall properties and types
- Project browserda location
lines katmanı seçiliyken properties sekmesindeki location lines
kısmından seçili kısmın iç veya dışta olduğunu seçebiliyoruz.
- Project browser'da wall
types katmanı açıkken duvarı seçip çift taraflı ok simgeni kullanarak (change
wall orientation) duvarı ters çevirebiliyoruz.
- Duvar seçiliyken properties
kısmındaki edit type sekmesine tıkladığımızda yeni bir pencere açılıyor.
Bu pencerede structure kutusuna tıkladığımızda yeni bir pencere daha
açılıyor. Bu pencerede duvar katmanlarının isimlerini ve kalınlıkları, hangi
sırada dizildiklerini görebiliyoruz. Eğer taşıyıcı olarak bir malzeme varsa
örneğin beton gibi; bu sekmenin structural material kısmındaki
kutucuk işaretlenmiş oluyor.
- Edit types penceresini
tekrar açıp graphics bölümünün altında coarse scale fill pattern ve coarse
scale fill color kısımlarından duvarların coarse görünümü açıkken
hangi renkte ve hangi desende olacağını seçebiliyorsunuz. Ancak bu durumda sol
alttaki ufak dikdörtgen kısımdan coarse seçili olmalı.
Locating walls
- Bir planda duvarların arasındaki
mesafelerin nasıl değiştirildiğini tekrar görüyoruz. Ancak bu sefer iki duvarın
iç yüzeyleri arasındaki mesafeyi daha hızlı bir şekilde ölçülendirmek için kısa
bir yol gösteriyor.
- Manage sekmesinin
altındaki additional settings kısmındaki temporary dimensions simgesini
seçiyoruz.
- Çıkan yeni pencerede walls
kısmını face door and windows kısmını openings yaparsak bize
daha hızlı bir şekilde 2 duvarın iç yüzeyleri arasındaki mesafeyi veriyor.
Using the modify tools
- Modify sekmesinin altındaki move,
copy, trim. offset, split gibi temel komutların nasıl kullanacağını
gösteriyor.
- Move komutunun kısayolu m + v
çizimi seçtikten sonra m + v ye basıp istenilen yere taşınabiliyor.
Snap referansları taşımaya daha yardımcı oluyor.
- Copy komutunun kısayolu c + o
istenilen çizim seçildikten sonra refaransa göre veya istenilen yere
kopyalanıyor.
- Trim komutu kesişen yerden kesme işlemi yaptığı
gibi eğer 2 çizim kesişmiyorsa bunları birleştirebiliyor ( Extend ). Kısayolu ise t + r
.
- Offset komutunun kısayolu
o
+ f çizgiyi istenilen boyutta
çoğaltabiliyor. offset seçiliyken üst menünün biraz altında bulunan kısımdan ne
kadar offset yapılacağını girebiliyoruz.
- Split komutunun kısayolu s + l
. Birkaç kesişim olduğunda daha incelikli bir kesim yapmak için delete
inner segment kutusu seçili olmalı.
Adding doors and windows
- Architecture sekmesinin altında doors
ve windows kısımlarında kapı veya pencere ekleyebiliyoruz.
- Kapı ve pencerenin şekill ve
ölçülerine ait özellikleri properties kısmından yapabiliyoruz.
- Eğer kapı veya pencere
istediğimiz yönde olmuyorsa space bar tuşunu kullanarak yönünü
değiştirebiliyoruz.
- Yeni bir pencere veya kapı
yüklemek istiyorsak, üst menüdeki load family simgesini kullanarak
yükleyebiliyoruz.
Using constraints
- Üst menünün üstünde ok şeklinde
simgesi olan align dimension komutu sayesinde bazı uzunlukları sabit tutup
yapılan değişikliklerden etkilenmemesini sağlayabiliyoruz. Kısayolu d + i
.
- Tab tuşunun yardımıyla duvarın
istediğimiz yüzeyinden başlayıp başka bir objenin istenilen yüzeyine kadar
ölçüm yapabiliyoruz.
- Yapılan bir ölçünün eşit
olmasını istiyorsak ortada çıkan mavi EQ yazısına tıklamalıyız ( toggle
dimension aquality ). Properties kısmında seçilen equality ölçüsünün ayarlarını
yapabiliyoruz. Value, equality text, equality formula seçenekleri ile daha
detaylı eşitlikler ve gösterimler yapabiliyoruz.
- Equality formulayı değiştirirken
parça sayısı ve total uzunluğu göstermesini sağlayabiliyoruz.
Adding plumbing fixtures and other components
- Architecture bölümünün
altında components kısmından tefriş için elemanları seçebiliyoruz. Eğer
eklemek istediğimiz birşey varsa yine load family simgesini kullanarak
kütüphaneden istediğimiz mobilya veya diğer tefriş elemanlarını seçebiliyoruz.
- İstediğimiz elemanı seçtikten
sonra konumlandırırken istediğimiz yönde değilse yine space bar tuşunu
kullanarak istediğimiz açıya ve yöne getirebiliyoruz.
- Eğer bütün çizimi tefrişleri ile
beraber 3 boyutlu bir şekilde görmek istiyorsak üst menudeki ev simgesine
benzeyen simgeye tıklayıp 3 boyutlu halde görebiliyoruz.
- 3 boyutlu görünümde sağ üstte
bulunan küpten istediğimiz taraftaki görünüşe geçebiliyoruz.
- Shift tuşuna basılı
tutarak fareyi oynattığımızda görünüşü istediğimiz şekilde rahatça
değiştirebiliyoruz.
Using Autodesk Seek
- Insert sekmesinin altında
sağdaki kutucuk autodesk'in sunduğu açık bir kütüphane. Bu kütüphaneden projede
yararlanabilecek ürünler indirip kullanabiliyoruz.
- Kutucuğa istenilen ürün
yazılınca autodeskin sitesine yönlendiriliyorsunuz ve buradan istediğiniz ürünü
seçip size uygun formatta yükleyebiliyorsunuz.
- Ancak ürün tek başına bir
sayfada açıldığı için bir projeye aktarırken ana menüde en sağda bulunan load
into project sekmesine tıklayıp istediğimiz projeye aktarabiliyoruz.
-Aktardığımızda yine space
bar tuşunu kullanarak uygun bir açıda ve yönde yerleştirebiliyoruz.
Wall Joins
- Duvar birleşimlerinin
düzeltilmesi için modify kısmında geometry sekmesinde bulunan wall joins simgesine tıklayıp düzenlemeler
yapabiliyoruz.
- Eğer 2 duvar birleşimi sivri bir uç yaratıyorsa square off komutu ile
kare bir uç yaratabiliyoruz.
- Butt ile küt bir şekilde
biten duvar birleşimleri yapılabiliyor.
- Miter ise 2 duvarı
diagonal bir şekilde birleştiriyor.
- Configuration sekmesinden
ise alternatifler değiştirilebiliyor.
CHAPTER 05 - Links, Imports and Groups
Linking AutoCAD DWG files
- Autocad dosyalarını Revit'e aktarırken dikkat edilmesi gereken
yerleri gösteriyor.
- İlk önce insert sekmesinin link bölümünden LinkCAD simgesine
tıklıyoruz
- Açılan pencerede ekleyeceğimiz
dwg,dxf,skp gibi formatlardan hangisini eklemek istiyorsak seçiyoruz.
- Çizimi daha detaylandırmak ve
kolaylaştırmak için color, layer, import units, positioning gibi birçok özellikleri
detaylandırabiliyoruz.
- Color seçeniğinden
autocad'te renkli olan çizgileri tek renk olarak siyah beyaz
aktarabiliyoruz veya invert yapabiliyoruz.
- Import Units bölümünden
santimetre veya metre gibi birçok seçeneğe göre çizimi revit'e aktarabiliyoruz.
Autodetect
özelliğini seçersek ise otomatik olarak çizimi ölçülendiriyor.
- Positioning seçeneği ise
eklenecek olan çizimin revit sayfasına konumlandırma yerini gösteriyor. origin
to origin seçeneği tam merkeze yerleştiriyor.
- Bu seçenekleri seçtikten sonra
import edildiği zaman çizimin üzerinde değişiklik yapabilmek için Modify
bölümünden select links ve select pinned elements seçenekleri
seçili olduğu zaman autocad dosyasını değiştirebiliyoruz.
- Çizim autocad halinde olduğu
için Revit programının özelliklerini taşımıyor. Bu yüzden bu çizim üzerinden
tekrar duvar, kapı, pencere gibi elemanları çizmek gerekiyor. Bu
işlemleri kolaylaştıran çok önemli bir komut ; trim/extended multiple elements. Bu
komut sayesinde duvarları kesip veya birleştirirken çizim daha hızlı ilerliyor.
Creating topography from a DWG
link
- Autocad dosyasında 3 boyutta olan izohips çizgileri bulunan
çizimi Revit'e import edip 3 boyutlu bir topografya oluşturmak için gereken
komutları gösteriyor.
- Import - Link - LinkCAD bölümünden
3 boyutlu topografyası oluşturulucak çizim revit'e ekleniyor.
- Bu işlemde önemli olan current
view kutucuğunun seçili olmaması. Bu durum 3 boyutlu çizgilerin
Revit'te de olmasını sağlamak.
- Çizim eklendikten sonra çok
büyük olacağı için kısayol olarak z+f (zoom to fit) tuşlarını kullanarak bütün topografya görülebiliyor.
- Çizimde sadece topografyanın
izohips çizgileri olmadığı için işlem yapabilmek için izohips çizgileri
seçilmesi gerekiyor.
- Çizim seçiliyken Import
instance bölümündeki query simgesine tıkladıktan sonra
açılan pencerede toposurface simgesi
seçiliyor.
- Place point simgesine
tıklayıp iki izohips arasında noktalar konulduktan sonra create from import - select
import instance seçildikten sonra topografya oluşturuluyor.
- Topografyayı görebilmek için
ekranın sol altında bulunan gözlük simgesine tıklayıp hide
element i seçip, görünümü shaded yaparak topografyayı
görebiliyoruz.
Understanding CAD inserts
- Detay çizimlerini import ederken dikkat edilmesi gereken yerleri
anlatıyor.
- Öncelikle diğer autocad
dosyalarını linkCAD'ten yaparken detay çizimlerini importCAD simgesinden
yapıyoruz. Buradaki ayarlarda colour seçeneği black and white , positioning
seçeneği ise center olabilir.
- Autocad dosyalarında çizgi
kalınlığı layerlara göre ayrıldığı için Revit'e yüklenen autocad dosyasının
belirlenmiş çizgi kalınlıkları olmuyor. Bu yüzden import bölümündeki import
lineweights penceresinden layerların renklerine göre çizgi kalınlığı
verilebiliyor.
Import tips
- Autocad üzerinden import edilen çizimde objeleri query
bölümünden silebiliyoruz veya gizleyebiliyoruz.
- Ancak query üzerinden
gizlediğimiz objeleri görmek için view - visibility and graphics bölümüne
gelmemiz gerekiyor (Kısayolu v+g). Visibility and graphics
bölümünden import edilen çizime ait layerları gizleyebiliyoruz ve görünür hale
getirebiliyoruz.
- Çizgiler seçiliyken explode
komutunu uygulayarak çizgileri parçalayabiliyoruz ve çizgi
kalınlıklarını line style bölümünden değiştirebiliyoruz.
- Ek bilgi olarak Manage - material bölümünden malzeme
atayabiliyoruz.
Create a group
- Grup yapacağımız çizimi seçip create - create group bölümünü
seçiyoruz (Kısayolu c+g).
- Gruplamak aynı elemandan onlarca
veya yüzlerce olduğu zaman yapılacak bir değişikliğin her elemanda olmasını
oldukça kolaylaştıran bir komut olduğu için çok önemli.
- Create group simgesine
tıkladıktan sonra önümüze bir pencere çıkıyor. Bu pencerede 2 kutucuk var.
Birincisi seçilen çizimin tamamına özel bir isim vermek için, ikincisi ise bu
çizimdeki detaylara ayrı bir isim vermek için. Bu işlem çok karmaşık çizimlerde
işi kolaylaştırıyor.
- Oluşturulan grupta yapılan bir
değişiklik o grubunu kopyalarında da aynı şekilde devam ediyor.
- Eğer grup içinde bir değişiklik yapmak istiyorsak edit
group (Kısayolu e+g) seçeneği ile gruplanmış çizimin
içinde değişiklik yapabiliyoruz.
Mirroring groups to create a
layout
- Çizimin mirror görünütüsünü elde etmek için mirror pick axis (mm) kullanılıyor. Bu
komut kullanırken referans bir çizgi gerekiyor.
- Çizginin üzerinden mirror
yapıldığı zaman 2 çizgi üst üste geldiği için bir tane grubun içinden o çizgi tab tuşu
ullanılarak siliniyor.
- Eğer çizgi üzerinden değil
hayali bir çizgi gibi refarans alınarak mirror yapılmak isteniyorsa mirror
draw axis (dm) kullanılarak yapılıyor.
- Sonuçta oluşan 4 tane veya daha
fazla grubu adlandırırken sırayla adlandırmak için attached detail groups komutu
kullanılıyor.
Creating Revit links
- Revit dosyasının içine başka bir revit dosyasını import ederken
dikkat edilmesi gerekenleri anlatan bir bölüm
- Link - Link Revit bölümünden
eklenecek dosyayı seçiyoruz.
- Eklediğimiz dosyayı hareket
ettiremediğimiz için önceki videolarda anlatıldığı gibi sol üstteki modify
sekmesinden select links kutucuğunu işaretliyoruz.
- Eklediğimiz dosyanın gerçeğinde
bir değişiklik yaptıktan sonra eklediğimiz revit dosyasında da o değişikliği
görmek için 2 seçenek var. Birincisi manage links komutunu kullanarak reload
dediğimizde değişiklikler tekrardan yükleniyor. İkinci alternatif ise
sol tarafta bulunan project browser penceresinde revit link satırında
bulunan dosyaya sağ tıklayarak reload etmek.
Rotating and aligning a Revit
link
- Bir bina çizimini araziye hizalayıp döndürmek için align
(a+l) komutu kullanılıyor.
- Çizimi daha iyi görebilmek için
görünümü wireframe yapmak gerekiyor.
- Ayrıca döndürmek için rotate
(r+o) komutu kullanılıyor. Rotate komutundayken çizimin ortasında çıkan
mavi daire döndürme aksını belirlemede kullanılıyor.
Establishing shared
coordinates
- Link edilen çizimi shared site bölümünden belli bir
koordinatta kaydedip nu koordinatı daha sonra başka çizimlerde kullanmamızı
sağlıyor.
Managing links
- Yeni bir link dosyası açarken karşımıza çıkan pencerede 2 seçenek
sunuluyor. Birincisi link'e ait location bilgisini sabit tutmak.
İkincisi bu seçeneği düşünmeyip sıfırdan bir location belirlemek.
- Manage links bölümünden
ise linklerin ayarlarını değiştirip bunların üzerinden değişiklik
yapabiliyoruz.
- Eğer bir link görünmüyorsa bu
linki tekrar yüklemek için reload simgesine tıklayıp aynı
isimdeki linki yükleyebiliyoruz.
- Manage links penceresine üst
kısımdaki bölümlerden ulaşılabildiği gibi project browser bölümünün altındaki revit
links bölümüne sağ tıklayarak ulaşılabiliyor.
Understanding file formats
- Bu bölümde ise Revit programının
help kısmını kullanmanın önemini anlatıyor.
Chapter 06 - Sketch-Based Modeling
Components
Working with floors
- Planların zemin çizgilerini belirlemek ve her katta bir zemin
oluşturmak için floor komutu kullanılıyor.
- Plan seçildikten sonra floor
komutunun içindeki özellikleri kullanarak bir zemin çerçevesi çizildikten sonra
o kata ait zemin çizilmiş oluyor.
- Edit boundary kısmından
ise düzeltmeler yapılabiliyor.
Working with footprint roofs
- Architecture - Roof - Roof by roofprint bölümünden çatının
şekline ve diğer özelliklerine ulaşılabiliyor.
- Önceki videolardaki gibi
duvarları seçip belli bir çerçeve oluşturuluyor. Ama buradaki ekstra bir durum
olarak çatının saçak uzaklığını ve eğimini belirleyebiliyoruz.
- Bunları belirledikten sonra çatı
oluşuyor. Ancak çok önemli olan bir nokta; Defines slopes kutucuğu. Eğer bu
özellik seçili olursa çizilen çizgi çatı oluşurken kapalı bir durumda oluyor.
Eğer seçili olmazsa çatının o bölümü açık kalabiliyor. Bu da çatı tasaramında
birçok farklı seçenek elde etmemizi sağlıyor.
Working with ceilings
- Bir planda tavan çiziminin nasıl
yapılacağını ve nelere dikkat edilmesi gerektiğini anlatıyor.
- İlk başta tavan çizimi
yapabilmek için project browser penceresinde ceiling katmanına gelmek
gerekiyor. Sonrasında tavan çizmek için Architecture - Ceilings bölümüne
gelmek gerekiyor. Burada Automatic ceiling seçeneği ile
kolayca tavan çizimi yapılabiliyor.
- Eğer özel bir tavan çizmek
gerekiyorsa sketch ceiling - draw kısmındaki pick
wall, pick line komutları kullanılabiliyor.
- Tavan çizimindeki oluşan grid
move veya rotate komutu gibi temel komutlar sayesinde değiştirilebiliyor.
- Ayrıca bu tavan bir aydınlatma
elemanı eklemek istersek Architecture - Components - Lights kısmından
yapaibliyoruz. Bu aydınlatma ünitesini grid sisteme align komutu ile
hizaladıktan sonra gridte yapılan değişikliklere göre aydınlatma ünitesinde
yeri değişiyor. Bu hizalama açısından çok önemli bir konu.
Working with extrusion roofs
- Architecture - roof - extrusion
roof bölümünden ulaşıp bir saçak
yapabiliyoruz.
- Bunu yaparken yüzeyde draw kutusundaki
elemanlarda bir çizgi çizebiliyoruz.
- Soldaki bölümden saçağın
kalınlığını ve malzemesini belirleyip oluşturabiliyoruz.
- Saçağı oluşturduktan sonra
saçağın derinliği çok büyük olursa bunu istediğimiz boyuta getirmek için align komutunu kullanıp istediğimiz yere
hizalayabiliyoruz.
Attaching walls to roofs
- Duvarı ve çatı arasında kalan
boşluğun nasıl kapatılacağını gösteriyor.
- İşlem yapılmak istenen duvarlar tab tuşu
yardımıyla seçiliyor.
- Sağ üst tarafta bulunan Attach
Top/Base simgesine tıklyaıp uzamasını istediğimiz çatıya tıklıyoruz ve
çatı ile duvar birleşmiş oluyor.
- Ayrıca çatının eğimini properties
- dimension - slope kısmından değiştirebiliyoruz. Birleştirdiğimiz
duvar bu değişim ile birlikte değişiyor.
Using the shape editing tools
to create a flat roof
- Düz bir çatıda değişiklik yapmak
için düz çatı seçiliyken; sağ üstteki shape editing bölümünden değişiklik
yapılabiliyor.
- Düz çatıyı kırma bir çatı yapmak
için add
point simgesiyle bir nokta ekleyip bu noktayı modify sub elements kısmından
yükseltilebiliyor.
- Eğer düz bir çatıda tek taraflı
bir eğim yapmak isteniliyorsa yine aynı komutlar kullanıp yapılabiliyor. Ancak
kesitten bakıldığı zaman çatıdaki eğimi düzeltmek için edit type bölümünden düz
yapılmak istenen yer duplicate yapılıp variable
kutucuğu seçildiği zaman istenilen eğimli bir çatı elde edilebiliyor.
Working with slope arrows
- Kırma çatıların veya birden çok
eğime sahip çatıların nasıl yapıldığını gösteriyor.
- Düz bir çatı seçildikten sonra edit
footprint - slope arrow komutu ile kırma çatıya ait üst çizginin
uzunluğunu yüksekliğini veya yönünü belirleyip birçok farklı çatı elde
edilebiliyor.
Adding openings
- Bir Çizimde asansör boşluğu veya
çatı penceresi için çatıda oluşacak bir boşluğun nasıl yağıldığını gösteriyor.
- Öncelikle Architecture - Openings sekmesinden
shaft
seçenekleri değişik şekillerde boşluk ouşturmaya yarıyor.
- Asansör boşluğunu yapmaya
çalışırken shaft bölümünden asansörün boşluğunu çizim araçları yardımıyla
çizdikten sonra çizimi kitliyoruz.
- Sol taraftaki properties
bölümünden asansör boşluğunun hangi seviyeler arasında olacağını base
constraint ve top constraint bölümünden
ayarlayabiliyoruz.
- Çatı penceresinin boşluğunu
yaparken ise ilk başta pencere ile çatıyı join roof yardımıyla birleştirdikten
sonra shaft komutu kullanarak çizimi tamamlıyoruz.
Chapter 07 - Stairs
Working with stairs
- Architecture - Stair - Stair by sketch bölümünden
istenilen biçimde merdiven çizilebiliyor.
- Bu bölümdenyken sap üstteki run, boundary, riser özellikleri
ile merdiven çizimi kolaylaşıyor.
- Run komutuyla merdiven çizmek daha
kolay olduğu için bu komut daha çok tercih ediliyor. Run komutundayken soldaki Properties
bölümünden; hangi katlar arasında olacağı , kaç basamağa sahip olacağını veya
basamak yüksekliğini ve genişliğini belitleyebiliyoruz. Edit type bölümünden de
aynı ayarları yapabiliyoruz.
- Bunları yaptıktan sonra merdiveni çizmeye hazırız.
Merdiven çizerken bize yardımcı olan gri renkteki yazıda kaç basamak daha
kaldığı bilgisini veiriyor.
- Çizimi yaptktan sonra ölçüleri istenilen düzeylere
getirmek için Activate Dimension kutucuğu işaretli olmalı.
- Merdiven çiziminden sonra korkuluk eklemek için ise
merdiven seçiliyken Railing bölümünden korkuluk ekleyebiliyoruz.
- Bütün bu çizimlerin nasıl göründüünü kesit layerlarında
daha rahat görebiliriz.
Adding railings to stairs
- Bu bölümde herhangi bir boşluğun kenarına korkuluk yapmayı
gösteriyor.
- Öncelikle Architecture - Railings - sketch path bölümünü
seçerek serbest bir şekilde korkuluğun geçeceği yeri çiziyoruz.
- Soldaki properties bölümünden korkuluğun nasıl görünceğine
ait detayları değiştirebiliyoruz.
- Son olarak çizdiğimiz korkuluğu 3 boyutlu bir şekilde
görebilmek için en üst bölümde bulunan ev simgesindeki camera özelliğini
kullanıp değişik persperktifleri görebiliyoruz.
Working with component-based stairs
- İlk olarak hem 3 boyutta hemde planda çalışabilmek için view
- tile windows simgesini seçip 2 ekranlı çalışılaibliyor.
- Bu bölümde merdivenin özelliklerini tek tek girmek yerine
otomatik olarak verilen bir merdiveni yerleştiriyor.
-Bunu yaparken stair - stair by component seçeneği
seçip istediği yere koyabiliyor.
- Bu seçenekte üst menün altındaki Location Line ile
başlayan satır merdivenin gidiş çizgisinin merkezde mi yoksa sağ veya sol
tarafta olacağını belirliyor.
- Merdiven çizildikten sonra merdiven ait özellikleri
değiştirmek için ölçülendirme komutu olarak Align dimension kullanılıyor.
Ayrıca yönünü de merdiven çizimi üzerindeki oklarla değiştirebiliyoruz.
- Properties kısmındaki underlay
bölümünden istediğimiz katın hayali bir çizgisini görebiliyoruz. Bu da
merdiveni yerleştirirken referans olmasını sağlıyor.
Adding extensions to railings
- Duvardan korkuluk veya açıkta kalan korkuluk seçeneklerini
gösteren bir bölüm
- Değişiklik yapılacak korkuluğu seçip duplicate yapıp
yeniden isimlendiriliyor.
- Sonrasında edit type bölümünden duuvara veya
zemine olacağını ve hangi uzaklıkta olacağını değiştirip uygun olan korkuluk
yapılabiliyor.
Chapter 08 - Complex Walls
Creating a custom basic wall type
- Duvarların iç özelliklerine ve diğer önemli özelliklerine değinilen bir bölüm
- Bunu detaylı göstermek için 2 tarafıda tuvalet bölümü olan bir duvar ele alınmış. bu duvar diğer duvarlar gibi basic bir duvar. Duvarların özelliklerine soldaki properties bölümünden edit type bölümüne gelip duvarların özelliklerini açıyoruz.
- Açılan pencerede edit bölümüne tıklayıp kalınlık özellikleri gibi şeyleri değiştirebiliyoruz. Bu duvarın 2 tarafıda tuvalet olarak kullanılacağı için duplicate yaparak çift taraflı bir duvar elde edebiliyoruz.
- Sonrasında duvar bölümlerini değiştirmek veya eklemek için bu bölümü kullanabiliyoruz.
- Eğer strüktür bir yapı eklemediysek bunu doğru bir şekilde değiştirmek gerek.
- Örnek olarak bir hava katmanı eklenmiş (Yani binadaki rezervasyon boşluğu) bu katman yapı katmanı olmadığı içinThermal / Air layer katmanına eklenmiş.
- Duvarların katmanı ile birlikte görebilmek için ise sayfada sol altta bulunan simgeye tıklayıp medium seçeneği ile duvar detaylarını görebiliyoruz.












Understanding stacked walls
- Basit duvarlarda tek bir özellik boydan boya yapılıyordu. Ama birden çok özelliği barındıran duvarlar yapmak için stacked wall yapmak gerek.
- Videoda ilk başta 3 tane farklı basit duvar gösteriyor. Betonarme - Tuğla - Parapet duvarı . Bu 3 duvar tek başına yapılabiliyor. Ama bunu tek bir duvarın içinde yapmak için project browser kısmından families - wall - stacked wall seçeneği seçip duplicate yapıyoruz. Duplicate yapmamızın nedeni yeni bir duvar oluşturacağımız için öncekinin kaybolmasını engellemek. Bunuda yaptıktan sonra sağa tıklayıp rename yapıp, yeniden isimlendiriyoruz.
- Duvarın özelliklerini değiştirmek veya yeni bir katman eklemek için sağa tıklayıp type properties yapıyoruz.
Açılan pencerede insert yapıp yeni bir duvar katmanı ekleyebiliyoruz.
- Bu katmanlar basit duvarlardan seçiliyor. Ancak birleşiminde problemler oluşabiliyor. Bunları manuel olarak tek tek hesaplayıp özel ölçüler vererek düzeltebiliyoruz. Ancak bu işi daha hızlandıran bir komut var; offset bölümünden birleşimlerin yerini değiştirebiliyoruz.
- Bu yaptığımız özel duvarı çizime uygulamak için bütün duvarları tab tuşuyla seçip properties bölümünden yaptığımız duvarın ismini seçip değiştirebiliyoruz.












Adding curtain walls
- Curtain wall , büyük boşlukların aluminyum doğrama ile doldurma hali gibi özellikleri sağlıyor. Bunu yaparken her zamanki wall bölümünden curtain wall seçeneğinin içinden storefront seçildi.
- Çizilen duvar diğer duvarlar gibi boyu ve genişliği rahat bir şekilde değiştirilebiliyor. Ancak ne kadar uzun olursa o kadar eşit parça halinde pencere oluşuyor. Bunun nedeni edit type bölümünden yatay ve dikey olarak hangi maksimum uznuluğa sahip olmasını belirtmek. Aynı menüden profillerinde hangi kalınlıkta olacağını belirleyebliyoruz .
- Daha sonra bu duvarı bir duvarın üstüne çizdiğimiz anda bize sonucu veriyor. Sonrasında yine aynı şekilde kolayca uzunluğunu ve genişliğini değiştirebiliyoruz.
- Çatı ile aynı eğimde olmasını veya bunun gibi farklı şekillerde olmasını istiyorsak çizdiğimiz duvarı seçip sağ üst menüde bulunan edit profile kısmında tıklayıp pick point komutu ile seçitiğimiz çigiye uyumlu bir çiizm yapabiliyoruz. Tabiki bu çizgiyi oluştururken yine trim , extend komutlarıyla oluşturabiliyoruz.












Adding curtain grids, mullions, and panels
- Duvara açılacak olan bir bölümün gridini ve çizgileri özel olarak çizmek istenildiği zaman curtain wall - curtain wall kısmı sayesinde yapılıyor.
- Bunu curtain wall bölümünden yaparken hata veriyorsa cut geometry bölümünden düzeltilebiliyor.
- Plan üzerinden değişiklik yapmak zor olduğu için bunu görünüşlerden yapmak daha hızlı ve düzenli oluyor.
- Görünüşe geçtikten sonra açılan curtain wall , curtain grid sayesinde istenilen şekilde çiziliyor.
- Bu çizimin biraz orantılı olması isteniyorsa align dimension kullanılarak istenilen grid boyutuna getiriliyor.
- Eğer bu açılan boşluğa kapı koymak istiyorsak ; add - remove bölümünden istenilen çizgiler silinebiliyor.
- Sonrasında açılan boşluğa kağı koymak için çizgiyi tab tuşuna basarak seçiyoruz ve soldaki properties bölümünden kapıyı seçebiliyoruz.
- Eğer panel olmasını istiyorsak yine tab tuşuyla seçip sağ tık ile select panels bölümüne geliyoruz. Burada karşımıza 3 tane seçenek çıkıyor. istenile yönde seçilip sonuca ulaşabiliyoruz.
- Daha sonra sol bölümden properties - panel - solid seçebiliyoruz.
- Bu değişikleri görebilmek için görünümü sol alt bölümden shaded yapmak gerekiyor.
- Sonrasında çizgi halde olan bölümleri profile çevirebilmek için curtain wall mullion seçip istenilen çizgileri profile çeviriyoruz.
- Modify bölümünden ise profilleri birleştirme veya ayrı ayrı profil çizme işlemlerini gerçekleştirebiliyoruz.



















Creating wall sweeps and reveals
- Bu bölümde genelde dış duvarlara uygulanancak olan çıkıntı ve içe doğru oluşacak boşlukların yapımı gösteriliyor.
- Bunu yaparken duvar tipine edit type bölümüne gelip görünümü sol alattaki bölümden view:section yaptıktan sonra sweep bölümünü açabiliyoruz. sweep menüsü açılınca karşımıza nereye hangi yüksekliten ne kadar uzağa konulacağına dair ve malzeme bilgisine dair bir menü çıkıyor.
- Bunları belirledikten sonra bu işlem seçilen tipteki bütün duvarlara uygulanıyor. Eğer uygulanmasını istediğimiz bir duvar varsa properties bölümünden duvar tipini değiştirebiliriz.
- Aynı şekilde wall - reveal yapıp duvar üzerinde çukur oluşturabiliyoruz.












Model lines
- Bu bölümde görünüşte referans çizgiler oluşturmayı sağlayacak komutlar gösteriliyor.


Chapter 09 - Visibility and Graphic Controls
Using object styles
- Bu bölümde kesitlerdeki çizgi kalınlıklarının nasıl değşitirildiğini anlatıyor.
- Manage - object styles bölümünden açılan pencereden değişiklik yapıp çizgi kalınlıklarını ayarlayabiliyoruz.




Working with visibility and graphic overrides
- View - Visibility/Graphics bölümünden açılan pencere ile çizimdeki elemanların görünümünü düzenleyebiliyoruz. (Kısayolu v + g)
- Açılan pencerede elemanları seçip sadece o elemanlardan bir çizim yapmak için hangi level da ise o level'a sağ tıklayıp duplicate view , duplicate veya duplicate details seçeneği ile yeni bir level oluşturup sadece tefriş veya sadece elektrik elamanı gibi ayrı ayrı çizimler oluşturabiliyoruz. Duplicate details tefriş için kullanılıyor.
- v + g kısayolu ile pencereyi açtığımız zaman sap tarafta bulunan halftone bölümünden silik görünmesini istediğimiz elamanları seçip çizim kalitesini yükseltebiliyoruz.






Using view templates
- Eğer çizimde zemin üzerinde bir hatch varsa ve bu hatch'i değiştirmek istiyorsak ; v + g bölümünden açılan pencere ile projection/surface , pattern sekmesinden saklayabiliriz . Floor çizgisini silmek iyi bir çözüm olmayacaktır .
- Eğer görünümde bir değişiklik yaptıysak ve bu değişiklikleri aynı şekilde diğer katlara uygulamak istiyorsak; view, view templates, create bölümünden ait olunan katın özellikleri yeni bir isimde kaydedilir ve uygulanacak kat açılıp view,view templates, apply bölümünden uygulanır.
- Yaratılan bir görünüm özelliğinde değişikliği yapmak için ise view, view templates, manage, V/G overrides model üzerinden type içerinde değişiklik yapılabilir. Ör, Tefriş çizgileri silik hale gelebilir.
- Görünüm içerisinde değişiklikleri uygulamak için alttaki simgelerden Enable temporary view properties özelliğini açmak gerekiyor. Eğer değişikliği onaylıyorsanız, aynı simgeden restore view properties tıklayıp değişikliği kaydediyorsunuz.














Hiding and isolating objects in a model
- Model'de bir objeyi veya elamanı saklamak veya sadece o elemanları göstermek için objeyi seçtikten sonra sayfanın altında görünen gözlük işaretine tıklayıp saklayabiliyoruz. hide elements; seçilen tek elemanı saklar. hide category ; eğer bir kolon seçiyorsanız bütün kolonları saklar. isolate elements/category ise aynı işlevlerin tersini uygular ve sadece seçilen elemanı veya kategoriyi gösterir.
- Kesit çizgisi, Aks çizgisi gibi işaretleri görünüşte gizlemek için ise önce seçip soonra üst menüdeki modify/views bölümündeki ampül simgesine tıklayıp seçilen kesit çizgisi veya bütün kesit çizgilerini saklayabilirsiniz.
- Tüm bu saklanan objeleri görmek için ise alt menüdeki gözlüğün yanındaki ampül simgesine (reveal hidden elements) tıklayıp saklanan kesit çizgilerini ve benzeri şeyleri görebilirsiniz ve görünür yapabilirsiniz.






Understanding view range
- Sol taraftaki menüden Floor planı seçip extents bölümündeki view range yazısının yanındaki edit'e tıklayıp katların hangi yükseklikten plan olarak algılandığını görebilirsiniz ve değiştirebilirsiniz.
- Bazı özel durumlarda planın çizildiği yüksekliğin bazı bölümlerde manuel olarak değişmesi gerekir; bu yüzden seçilen katta iken ; view, planviews, plan region seçilip istenilen bölge çizilir. Ardından modify/plan region, view range bölümünden yüksekliği belirlenir . Bu sayede istenlen yere istenilen yükseklikteki çizim aktarılabilir.




Displaying objects above and below in plan views
- Kat seviyesi seçildikten sonra sol taraftan extents,view range ile seçilen objeyi istenilen yüksekliğe getirip görünümünü değiştirebiliyoruz.
- Aynı şekilde bu işlemi kesit için de uygulayabiliyoruz.


Using the Linework tool
- Planlarda altta kalan katın veya üstte kalan katın çizgilierini yönetmek için soldaki menuden graphic, underlay üzerinden değişiklik yapabiliyoruz. graphic,underlay orients üzerinden çizgi kalitesini değiştirebiliyoruz.
- Sol üstteki mouse işaretinin altındaki modify bölümünden underlay objects sayesinde underlay objeleri görebiliyoruz ve üst menüdeki modify bölümünden Linework sekmesi ile line style seçeneklerini görebiliyoruz.






Using cutaway views
- 3D görünümünde iken bir section veya planı 3 boyutlu görmek için önce 3D layerına geliyoruz veya üstteki satırdan 3D görünüme geçiyoruz. bu görünümü sağ tıklayıp duplicate view, duplicate yapıp çoğaltıyoruz.
- Ardından sağ tarafta bulunan küp üzerine sağa tıklayıp; orient to view üzerinden istediğimiz level'a 3 boyutlu ulaşabiliyoruz. Sonra küpün köşesine tıklayıp güzel bir açı yaratabiliyoruz. Oluşturduğumuz section'ı da 3 boyutlu hale giterebiliyoruz.
- 3 boyuttaki sectionda sol attaki simgelerden görünümü shaded veya başka bir şekile getirebiliyoruz.
- Ayrıca referans bir dikdörtgen kesit çizgisini istediğimiz şekilde değiştirebiliyoruz. Eğer o kutucuğu görmek istemiyorsak ; seçip üst menüden hide elements ile saklayabiliyoruz.







Using sketchy lines
- 3 Boyutlu görünümü daha estetik hale getirmek için alt menudeki dikdörtgenler prizmasına benzeyen simgeye (visual style)tıklayıp graphic display options üzerinden bir pencere açabiliyoruz.
- Bu pencerede görünümü wireframe,shaded gibi yapma seçeneklerinden fazla olarak sketchy lines ile sketch efekti verebiliyoruz. Jitter ve extension bölümünden sketchin kalitesini değiştirebiliyoruz.
- Çizgileri saha yumuşatmak için pencerenin üst bölümünde bulunan smooth lines with anti aliasing kutucuğunu işaretleyerek yapabiliyoruz.
- Shadow bölümünden gölge verip daha efektif hale getirebiliyoruz.






Chapter 10 - Rooms
Adding rooms
- Üstteki bölümde room & area panelindeki room simgesine tıklayarak oda bilgilerini açabiliyoruz.
- tag on placement simgesiyle istedeiğimiz odaya bilgi ekleyebiliyoruz. Eğer oda olmayan bir yere yerleşirse herhangi bir bilgi vermiyor.
- Bazı durumlarda oda çok büyükse ve duvar olmadan bölmek istiyorsak; yine room & area bölümünden room seperator simgesini seçip çizgilerle odayı ayırabiliyoruz.
- Oda bilgilerini sol taraftaki bölümden identity data kısmındaki area bilgisiyle öğrenebiliyoruz. Aynı şekilde varolan odanın adını veya numarasını değiştirmek için tıklayıp değişiklik yapabiliyoruz . Sol taraftaki number, name sekmesinden değiştirebiliyoruz.











Controlling room numbering
- Room separator ile çizilen çizginin rengini veya kalınlığını değiştirmek için çizgiye tıklayıp üst menudeki fırça simgesine tıklayıp (override graphics in view) override elements veya category ile seçilen çizgiyi veya aynı özelliklteki tüm çizgileri değiştirebiliyoruz.
- room sekmesine girip tag elements ile room oluşturunca room 1 olarak başlıyor ve 2,3,4 diye devam ediyor. Ama eğer odanın adını değiştirip devam ederseniz ona göre uyum sağlıyor. Örneğin; ilk tagteki room'u 101 yaparsanız. ondan sonra eklenen 102,103,104 olarak devam ediyor.
- Çizimi seçip üst menudeki filter simgesinden check none ardından room kutucuğunu seçerseniz seçilen bölge içindeki bütün roomları elde etmiş olursunuz. ve toplu isim değiştirip ofis, tuvalet gibi oda isimlerini kısayoldan yazabilirsiniz.
- Peki 1.kattaki bu isimlendirmeyi 2.kata nasıl aktarabiliriz ? 2.kata gelip ilk bir odayı isimlendirmek gerekyor. Ör; 201 . Ardından tek tek yazmak yerine 1.kattaki hali hazırdaki 4 tane ofis odasını seçip (nasıl seçilieceğini üstte gösterdi) paste simgesinin yanındaki copy clipboard simgesine tıkladıktan sonra 2.kata gelip paste, align to current view işlemi ile kısayoldan 202,203,204 gibi devam eden isimlendirmeler yapılabilir.











Understanding room bounding elements
- Giyinme odası veya ona benzer küçük odaları alana dahil etmek için arada kalana duvarları seçip sol menüdeki walls, room bounding sekmesini kapatmalısınız.

Chapter 11 - Schedules and Tags
Understanding tags
- Yapı elemanlarına etiket koymak için tag komutlarını kullanıyoruz. Üstteki menüden Annotate,tag,tag by category ( t+g ) komutlarını kullanalarak tag oluşturuyoruz.
- Örneğin kapının üstüne tıklayıp tag eklediğimizde 1,2,3 diye giden numaralar ekliyor. Ancak bu numaralar çizimde kapıyı oluşturma sırasına göre ilerliyor. Yani tag koyma sırasına göre ilerlemiyor.
- Numarayı değiştirmek istersek tıklayıp soldaki properties bölümünden identity data, mark bölümünden sayısını değiştirebiliyoruz .
- Pencerede ise pencerenin tipine göre numaralandırıyor. Bu yüzden aynı tipteki pencere ör; 24 numara veriyor. Pencerenin tipini değiştirirsek numarası da değişiyor.
- 24 numara yerine başka numara vermek için ise tag'e tıklayıp soldaki properties bölümünden edit type'a tıklayıp açılan pencereden identity data,type mark bölümünden istediğimiz sayıyı verebiliyoruz.
- Eğer A numaralı bir duvara tıklarsak ve numarasını değiştirmek istersek karşımıza bir uyarı penceresi çıkıyor ve yapılacak değişikliklerin diğer pencerelere yansıyacağını söylüyor. Onaylarsak aynı tipteki pencerelerin numarasını değiştirebiliyoruz.
- Eğer tek bir duvarın numarasını değiştirmek istiyorsak , tipini değiştirmek zorundayız.
- Eğer tek tek numaralandırmak istemiyorsak Annotate,tag,tag all sekmesinden bütün yapı elemanlarını tek bir hamle ile numaralandırabiliyoruz. leader kutucuğu seçilmemeli .
- Tag'in büyüklüğünü değiştirmek için tag'e sağa tıklayıp select all instances, visible in view diyerek aynı tipteki tagleri seçiyoruz ve soldaki properties bölümünden büyüklüğünü değiştirebiliyoruz.
- Tag'e tıklayıp soldaki properties , edit type bölümünden tag'in özelliklerini düzenleyebiliyoruz.















Adding schedule views
- Çizimdeki elemanları bir tablo üzerinde görmek için schedule komutunu kullanmak gerekiyor. Üst bölümde bulunan view bölümünden create,schedules,schedule/quantities ile schedule a ulaşabiliyoruz veya sol attaki project browser bölümünden schedule/quantities bölümüne sağa tıklayarak yeni bir schedule açılabilir.
- Schedule ile açılan pencerede sadece architecture seçmek daha kolay olacaktır. Ardından elemanları ve istediğimiz filtreleri seçebiliyoruz.
- Sonucunda bir tablo çıkıyor ve tablo üzerinden yapılan değişiklikler çizime direk yansıyor ve senkronize çalışıyor. Sandalyenin tipini değiştirip yatağın boyutunu değiştirebiliyoruz.
- Ayrıca hepsine isim verip çizimde bulunmasını kolaylaştırabiliyoruz.














Chapter 12 - Annotation and Details
Adding text
- Annotate,text bölümünden bir text oluşturabiliyoruz ( t + x ) yazdıktan sonra boş bir yere tıklamak gerekiyor , esc veya enter tuşuna basmamak gerek.
- Text'e tıkladığımızda sl taraftaki properties bölümünden fontun büyüklüğünü değiştirebiliyoruz. edit type'a tıklayarak daha detaylı değişiklikler yapılabiliyor.
- Text'e tıkladığımızda üst menude +A simgesi ile ok ekleyip çıkartabiliyoruz ve okun kaç tane olacağını açısını vb gibi özellikleri edit type üzerinden yapabiliyoruz.
- Bazı durumlarda yazının arkasına beyaz bir arkaplan gerekirken bazen transparan olması gerekebiliyor. bu işlemleri de edit type üzerinden yapabiliyoruz.







Adding Dimension
- Annotate,dimension,Align bölümünden ölçü vermeye başlayabiliyoruz ( d+i ).
- Ölçü verirken modify | place dimension bölümünden duvarın yüzeyinden mi yoksa ortasından mı ölçü almasını seçebiliyoruz.
- Eğer ortasını seçtiysek ve ölçü verirken spesifik bir yerde yüzeyden ölçü vermek istiyorsak. tab tuşuna basarak istediğimiz tarafı seçebiliriz.
- İşimizi çok hızlandıracak bir bölüm; eğer duvardaki bütün detaylarla beraber ölçülendirmek istiyorsak modify | place dimension bölümünden entire wall kısmını seçersek bütün duvarı kolayca ölçülendirebiliyoruz. Aynı şekilde options bölümünden intersect wall veya intersect grid bölümünü seçerek iç duvarların kalınlığını veya gridleri de referans alarak ölçülendirebiliyoruz.
- Bir duvarda çok açıklık varsa ve ölçüler çok dipdibe ise ölçülerin altında bulunan noktayı çekerek istediğimiz yere yerleştirebiliyoruz.
- Eğer ölçüler arasından birisini seçmek veya silmek istiyorsak tab tuşuna basıp seçip silebiliyoruz.
- modify dimension,edit witness lines bölümünden manuel olarak devam eden bir şekilde ölçülendirebiliyoruz .
- Ölçüye sağ tıklayınca dimension text penceresi açılıyor. Bu pencerede ölçünün altına ,sağına, soluna isim yazıp daha tanımlı bir ölçülendirme yapabiliyoruz.













Adding symbols
- Çizime kuzey noktası, ölçek veya buna benzer semboller eklemek için annotate sekmesinden sağda bulunan symbols seçiliyor . İstenilirse load family'den semboller yüklenebiliyor.





Adding legend views
- Schedule için bir lejant oluşturmak için soldaki project browser bölümünden legend'a gelip sağ tıklayarak yeni bir legend oluşturulabilir veya üst menüden view,create,legend simgesine gelip oluşturulabilir.
- Legend oluşturulunca bembeyaz bir sayfa ile karşılaşıyoruz. Buraya istediğimiz elemanın görünüş,plan veya kesitini koyabiliyoruz . Bunun için annotate,detail,component,legend component adımlarını takip ediyoruz. Sonra family bölümünden istediğimiz kapının veya başka bir elemanın hangi görünüş olduğunun seçip yerleştiriyoruz .
- Uzunluk ve isim bilgileri gibi özellikleri girdikten sonra legend oluşmuş oluyor.
- Sonrasında bu legend'ı schedule'a aktarmak için project browser da legendı bulup schedule sayfasına sürükleyebiliyoruz.








Creating a detail callout
- view,create,callout kısmından bir dikdörtgen seçim ile detaylı göstermek istediğimiz alanı seçiyoruz.
- Seçtiğimiz anda hangi kattaysak project browser'da yeni bir callout layerı açıyor. F2 kısayolunu kullanarak yeni bir isim verebiliyoruz .
- callout layerını açtığımızda 2 tane dikdötgen ilşe sınırlandığını görüyoruz. Bunları saklamak yada göstermek için alt tarafta buluna hide crop region veya show crop region simgelerini kullanabiliyoruz. properties penceresinin extents kısmında da aynı işlemleri yapabiliyoruz.
- Eğer bir yazı yazmak istersek o yazının crop çerçeveleri içinde olcağına emin olmamız gerek. properties penceresinin extents kısmında annotation crop ile sınırsız bir yazı alanı da oluşturabiliyoruz .









Adding detail components
- Detay çiziminde eleman eklemek için; annotate,component,detail component kısmını seçmemiz gerekiyor.
- Üst menüde bulunan load family kısmından istenilen detayın kesit,plan veya görünüşüne ulaşabiliyoruz. Sonrasında move komutuyla istenilen noktaya titiz bir şekilde yerleştirebiliyoruz.








Using arrays to duplicate objects parametrically
- Merdiven basamağına konulan bir detayı diğer basamaklara da uygulamak için detaya tıklayıp , modify bölümündeki array komutuna tıklamamız gerekiyor ( AR ).
- Tıkladığımızda bize lineer mi olacağını , sayısını , 2.ciyi referans alarak mı yoksa sonuncuyu referans alarak mı array yapacağını soran bir satır var. constrain kutucuğu işaretlenmezse daha rahat array yapılabiliyor. Aksi takdirde dikey ve yatay olarak yapabiiyoruz.
- Array işleminden sonra sayısını istediğimiz gibi değiştirebiliyoruz. Ayrıca arraylı bir detay yer değiştirdiğinde diğer array objeleride ona uyumlu yer değiştiriyor. ,
- Eğer array içindeki objede bir değişiklik yapmak istiyorsak edit group kısmına gelip ekleme veya çıkarma yapabiliyoruz. edit type kısmından ise uzunluğunu değiştirme gibi daha detaylı işlemler gerçekleştirebiliyoruz.








Adding filled and masking regions
- Bazı detaylarda çok karışıklık yaratmaması adına bazı bölümler maskelenir . bunun için; annotate,region,masking region veya filled region tıklayıp istediğimiz bölümü çiziyoruz.
- Çizerken çizgi kalınlığını değiştirip daha kaliteli bir detay çizimi yaratabiliyoruz.
- Çizdikten sonra maske en üst katmanda olacağı için herşeyi kapatır. Bu yüzden seçip arrange kısmından bring to front veya bring to back seçenekleri ile istenilen aralığa koyulabilir.
- Bu sayede hataların üstünü örtme veya çizimi çamurlaştırcak çizgi kalabalığının önüne geçilmiş olur.







Chapter 13 - The Basics of Families
Creating a new family from a template
- Yeni bir family oluşturmak için reviti açınca ana sayfadan new, family veya sol tarafta bulunan families sekmesinin altından new simgesine tıklayıp yeni bir family oluşturabiliriz.
- Burada menüde arcchitecture yerine create sekmesi var ve daha farklı komutlar mevcut.
- 4 tane görünüş var bu yüzden bunların hepsini birarada görmek için w + t ardından z + a ile daha kolay çizim yapabiliriz.
- Dosyayı kaydederken ise options kısmına tıklayıp maximum backups seçeneğini 1 seçip source seçeneğini 3d views yapmalıyız.









Using reference planes, parameters, and constraints
- Oluşturulacak family referansları için birkaç tane reference plane r + p yerleştiriyoruz (genişlik ve uzunluk için).
- Align dimension ile aralıkların ölçüsünü alıyoruz. Alırken EQ yazısına tıklıyoruz ki uzunluk değişse bile oranlar aynı kalsın.
- Yazıları daha iyi görebilmek için ölçeği sol alttan büyütebiliriz.
- Dimension'a tıklayıp üstte oluşan satırda label simgesinden add parameter 'a tıklayıp seçilen ölçü uzunluk veya genişlikse adını değiştiriyoruz. Açılan pencereden edit tooltip deyip detaylı bilgisini yazabiliyoruz.
- Uzunluk ve genişlik parametrelerini eklediten sonra çeşitlerini kaydetmek için; modify, family types üzerinden açılan pencereden new diyerek yeni çeşitleri ekleyebiliyoruz. ( birden farklı uzunlukları )











Adding solid geometry
- Eğer bir masa yapacaksak ve masa yüzeyini oluşturmak istyiorsak kesitte bir reference plane yaratıp bu planeleri kitle simgesiyle kitleyip kalınlığının değişmesini engelleyebiliyoruz.
- Extrusion komutu ile basit bir dikdörtgen veya başka bir şekil çizebiliyoruz.
- Set work plane komutu ile bir çalışma yüzeyi oluşturuyoruz. Masanın kenarının kesik bir biçimde devam etmesi için sweep komutunu seçip bir yörünge çiziyoruz ( offset komutu ile masa tablasından dah büyük çizebiliyoruz.)
- Sonrasında bir artı işareti oluşuyor. o işarete tıklayıp o bölüme bir rail ekliyoruz (load profile bölümünden).
- Raili istediğimiz yere yerleştirip kesik kenarlı bir masa yüzeyi yaratmış oluuyoruz.












Cutting holes using void geometry
- Eğer masa yüzeyinde bir delik açmak istiyorsak (örn, bilardo masası gibi); void forms, void extrusion kısmını seçip istediğimiz şekli çizebiliyoruz. working plane zemin seviyesinde başlar. Ancak onu değiştirmek için edit workplane üzerinden hangi seviyeden sonra delik açılmak isteniyorsa o seviye seçilir.
- Extrusion turuncu renkte görünür. kesmek için cut komutunu kullanıp istenilen geometri elde edilebilir.






Adding blends
- Bilardo masasının ayaklarını yapmak için blend komutunu kullanıyoruz.
- İlk başta ayakların geleceği yerleri reference plane ile hizalayıp kilitliyoruz.
- Mirror komutu ile aynısını diğer tarafa kopyalıyoruz.
- Blend bizden alt ve üst çizimi istiyor. il açıldığında alt kısmı çizmeye başlıyoruz.
- Edit top bölümünden üst kısımı kenarları oval bir dikdörtgen yapıyoruz.
- İşlem bittiğinde ayaklar bilardo masasının üstünde görünüyor. Edit workplane kısmından tabanını değiştirip , görünüşlerden ise uzunluğunu anında değiştirebiliyoruz.











Completing the family
- Yapılan bir family üzerinden ekleme veya başka bir dosyaya yüklemeyi gösteriyor.
- Bilardo masasının tabla rengini değiştirmek için objeyi seçip properties, material kısmından rengini değiştirebiliyoruz. graphics ve apperence kısmının renklerinin aynı olması önemli. o yüzden render rengini ayarlayınca use render settings kutucuğunu seçmek yeterli .
- Masaya top ve ıstaka eklemek için component seçip çıkan pencereye yes dedikten sonra dosyayı bulup yerleştiriyoruz.
- Daha sonra bütün bu objeyi beraber bir yapıya eklemek istiyorsak load into project simgesine tıklayıp istediğimiz projeye ekleyebiliyoruz.













Chapter 14 - Sheets, Plotting, and Publishing
Adding sheets
- Baskıya hazırlamak için bir sheet oluşturmak gerekli. Sheet içinde kesitler planlar ve diğer sayfalara ait bilgileri ekleyebiliyoruz.
- Soldaki project browser bölümünden sürükleyip istediğimiz sheet üzerine atabiliyoruz. Sectionları soldaki properties, graphic, detail numbers üzerinden kesite isim verebiliyoruz.
- Yeni bir sheet oluşturmak için soldaki sheet (all) bölümüne sağ tıklayıp new sheet yazısına tıklıyoruz. Aynı şekilde oluşturulan sheet üzerinde sağ altta bulunan dikdörtgen bölümden isimlerini ve özelliklerini değiştirebiliyoruz.
- Yeni oluşturulan sheet üzerine yeni bir çizim eklemek için; view,sheets,place view simgesi ile istenilen çizim eklenebiliyor.
- Ayrıca view,create,schedule, sheet list üzerinden bütün sheetlerin hangi özelliklerini istiyorsak bir tablo oluşturabiliyoruz. Aynı şekilde sürükleyip bırakarak istediğimiz sayfaya bu tabloyu ekleyebiliyoruz.
- Tabloya tıklayıp sağ tarafında çıkan z harfine benzeyen simge ile tabloyu 2 ye bölebiliyoruz.
















Working with placeholder sheets
- İlk bölümde varolan sheet ler üzerinde değişiklik yaptık. Bu bölümde bu sheetleri nasıl oluşturduğumuzu gösteriyor.
- Project browser, sheet(all) kısmına sağ tıklayıp new sheet diyip yeni bir sheet oluşturabiliyoruduk. Buna ek olarak sheet (all) bölümüne tıklayıp rows, insert, data row diyip yeni bir sheet oluşturabiliyoruz.
- Schedule içindeyken sağ tarafta bulunan new sheet simgesine tıklayıp select placeholder sheets bölümünden hangi sheeti istiyorsak ekliyoruz. Eklenen sheetler ıproject browser bölümünde tek tek yer alacaktır.
- Oluşturulan sheet üzerine bir plan ekledik ve planda bazı çizgileri görmek istemiyorsak sheetin herhangi bir yerine sağ tıklayıp activate view üzerinden istediğimiz çizgiyi view bölümünden hide in view yapıp ardından yine sağa tıklayıp deactivate view diyip bitiriyoruz.










Aligning views with a guide grid
- Herhangi bir sheet üzerindeyken sheet compositon üzerinden bir grid oluşturuyoruz.
- Properties kısmından Guide spacing ile aralığını değiştirebiliyoruz.
- Başka bir sheet üzerinde guide grid üzerinden aynı gridi ekleyebiliyoruz.
- Bu işlemin önemi sheetlerin içindeki çizimleri hizalamak. Bunun için gridin herhangi bir noktasına bütün çizimleri move komutu ile hizalayıp . üst üste geldiği anda okuması kolay planlar oluşturmak.






Outputting sheets to a DWF file
- Sol üstteki revit logosu export, dwf diyerek exportlyabiliyoruz. Açılan pencereden in session seçeneğini seçersek istediğimiz görüntüyü exportlayabiliyoruz. İstersek bütün görüntüleride exportlayabiliyoruz.
- Dwf viewer programında dwf formatını açabiliyoruz. Ama autocad formatı gibi üzerinde yapılacak değişiklikler sadece not alma gibi değişiklikler. Bu önemli çünkü autocad bulunmayan bilgisayarlara ve sadece görüntelemek isteyenler için iyi bir seçenek.











Exporting to AutoCAD
- Sol üstteki revit logosu, export, cad, dwg ile autocad formatında exportlayabiliyoruz.
- Yine aynı şekilde hangi çizimleri seçeceğimizi in session seçeneği ile yapabiliyoruz.
- Ancak autocad çiziminde daha detaylı ayar yapabilmek için select export setup ile daha detaylı ayarlara ulaşabiliyoruz.
- Layers, lines, patterns, texts, color, solid, units, general seçenekleri ile istediğimiz değişikliği yapabiliyoruz. Solid - ACIS solids . General, export rooms and areas as polylines seçeneklerini seçmemiz önemli.
- Next dediğimiz an ismini verip exportlayabiliyoruz ancak son hamle export views on sheets and links as external references seçeneği seçili olmalı.









Plotting and creating a PDF
- PDF formatında çıktı almak için revit logosu, print seçeneği ile pdf formatında çıktı alabiliyoruz.
- Açılan pencerede sayfa boyutu yapısı rengi vb gibi birçok özelliği değiştirebiliyoruz.
- Önemli noktalardan birisi ; print range , selected views seçili olması istenilen çizimi pdf yapma olanağı sağlıyor.
- Son önemli nokta ise Fit to page yerine %100 zoom yapmak daha mantıklı.








































































































































































































































Hiç yorum yok:
Yorum Gönder